

Ehrendorf Immobilien
Frau Ann Christin Ehrendorf
017 ···
Nr. anzeigenPreise & Kosten
Provision für Käufer
3,57% inkl. 19% MwSt. vom Kaufpreis zzgl. MwSt.
Lage
Die Immobilie befindet sich in Kierspe Bollwerk, an einer Bundesstraße gelegen.
Zwei Bushhaltestellen befinden sich in der Nähe des Hauses. Rund ums Haus befinden sich fußläufig viel Grün und Wege zum Spazieren.
Kierspe ist eine Stadt in Nordrhein-Westfalen, Deutschland. Sie liegt im westlichen Sauerland und...
Das Haus
Kategorie
Einfamilienhaus
Baujahr
1927
Bezug
nach Vereinbarung
Energie & Heizung
Warum sehe ich diese Anzeige? – Du siehst diese Anzeige basierend auf Ihrer Navigation auf unserer Website und den Suchkriterien, die du verwendet hast.
Energieausweistyp
Bedarfsausweis
Gebäudetyp
Wohngebäude
Baujahr laut Energieausweis
1927
Wesentliche Energieträger
OEL
Gültigkeit
bis 01.04.2026
Effizienzklasse
H
Endenergiebedarf
217,00 kWh/(m²·a)
Weitere Energiedaten
Energieträger
Öl
Heizungsart
Zentralheizung
Details
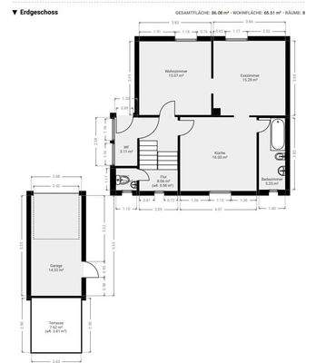
Objektbeschreibung
Verwirklichen Sie Ihren Traum vom Eigenheim in diesem bezaubernden kleinen Altbau!
Bei dieser Immobilie handelt es sich um ein freistehendes Einfamilienhaus aus dem Jahre 1927. Die Immobilie wurde im Laufe der Jahrzehnte immer wieder teils modernisiert und renoviert. Stilelemente wie der Sockel aus Naturstein und die...
Ausstattung
Einige Highlights zu dieser Immobilie:
+ Zwei Bäder (1x Badewanne, 1x Dusche)
+ Neues Dach inkl. Dämmung 2016
+ Außenfassaden Dämmung links 2016
+ neue Kellertreppe
+ Ölheizung von 1999
+ neue Elektrik im EG 2000
+ Fenster Kunststoff (80er Jahre)
+ traumhafter großer Garten mit Terrasse
+...
Weitere Informationen
Sonstiges
Ihr Ansprechpartner für dieses Angebot ist Cordula Ehrendorf. Gerne stellen wir Ihnen weitere Unterlagen zur Verfügung und vereinbaren einen Vor-Ort-Termin mit Ihnen.
Weitere Angebote finden Sie unter www.ehrendorf-immobilien.de
Sie finden uns auch auf Facebook unter...
Anbieter der Immobilie
Ehrendorf Immobilien
Werdohler Straße 186, 58511 Lüdenscheid

Online-ID: 2lvxu59
Referenznummer: 340
Finde Angebote wie dieses
Hier geht es zu unserem Impressum, den Allgemeinen Geschäftsbedingungen, den Hinweisen zum Datenschutz und nutzungsbasierter Online-Werbung.