

wohnart - Immobilien + Architektur
Herr Steven Buhlmann
039 ···
Nr. anzeigenPreise & Kosten
Provision für Käufer
Die vom Erwerber zu zahlende Maklerprovision beträgt 3,57% einschließlich MwSt. des Kaufpreises samt dem vom Käufer übernommenen sonstigen Leistungen, dem Verkäufer vorbehaltenen Nutzungen sowie dem Zubehör und einem etwa mitveräußerten Inventar.
Lage
Die Immobilie liegt in stadtnaher Wohnlage von Wernigerode, unweit des historischen Zentrums. In der näheren Umgebung befinden sich Einkaufsmöglichkeiten, Haltestellen der Harzer Verkehrsbetriebe sowie weitere Einrichtungen des täglichen Bedarfs. So erreichen Sie die Innenstadt und alle wichtigen Anlaufpunkte bequem und...
Das Haus
Kategorie
Einfamilienhaus
Baujahr
1932
Energie & Heizung
Warum sehe ich diese Anzeige? – Du siehst diese Anzeige basierend auf Ihrer Navigation auf unserer Website und den Suchkriterien, die du verwendet hast.
Energieausweistyp
Bedarfsausweis
Gebäudetyp
Wohngebäude
Effizienzklasse
E
Endenergiebedarf
148,30 kWh/(m²·a)
Weitere Energiedaten
Energieträger
Gas
Heizungsart
Zentralheizung
Details
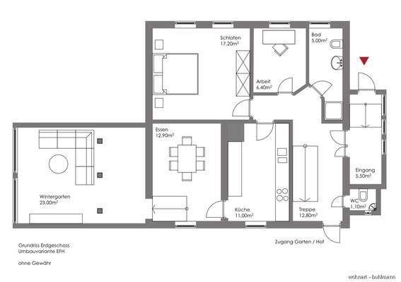
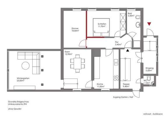
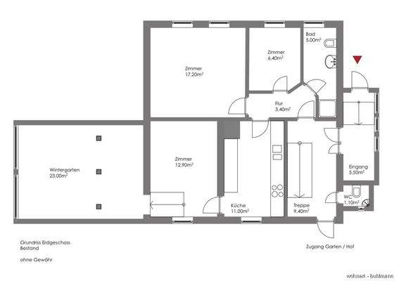
Objektbeschreibung
Diese großzügige Immobilie befindet sich in zentraler Lage von Wernigerode und bietet vielfältige Möglichkeiten, sich individuell zu verwirklichen. Ob als geräumiges Einfamilienhaus, als Zweifamilienhaus mit zwei getrennten Wohneinheiten oder in Kombination mit einer Einliegerwohnung - hier stehen Ihnen viele Wege offen, Ihre...
Preisinformation
3 Carportplätze
3 Stellplätze
Weitere Informationen
Stichworte
Carport vorhanden, Stellplatz vorhanden, Anzahl der Badezimmer: 2, Anzahl Terrassen: 1
Anbieter der Immobilie
wohnart - Immobilien + Architektur
Gustav-Petri-Straße 4, 38855 Wernigrode

Online-ID: 2lvzn5f
Referenznummer: 2025-15
Finde Angebote wie dieses
Hier geht es zu unserem Impressum, den Allgemeinen Geschäftsbedingungen, den Hinweisen zum Datenschutz und nutzungsbasierter Online-Werbung.