
Marko Künne Immobilien
034 ···
Nr. anzeigenPreise & Kosten
Provision für Käufer
provisionsfrei
Lage
Naunhof - Natur pur & Leipzig ganz nah
Naunhof liegt nur ca. 20 km südöstlich von Leipzig und bietet genau die richtige Mischung aus grüner Idylle und guter Anbindung. Umgeben von Wäldern, durchzogen vom Fluss Parthe und bekannt für seine drei Badeseen - Grillensee, Moritzsee und Albrechtshainer See - ist der Ort ein...
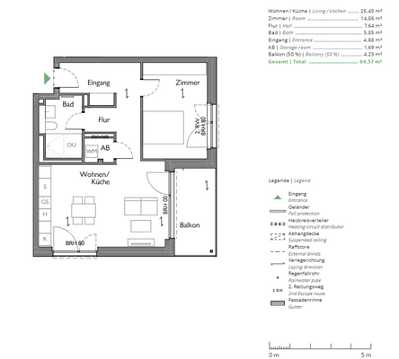
Die Wohnung
Wohnungslage
1. Geschoss
Bezug
2027
Wohnanlage
Energie & Heizung
Warum sehe ich diese Anzeige? – Du siehst diese Anzeige basierend auf Ihrer Navigation auf unserer Website und den Suchkriterien, die du verwendet hast.
Energieausweistyp
Bedarfsausweis
Gebäudetyp
Wohngebäude
Wesentliche Energieträger
Luftwärmepumpe
Gültigkeit
16.10.2023 bis 25.03.2035
Endenergiebedarf
25,30 kWh/(m²·a)
Weitere Energiedaten
Heizungsart
Fußbodenheizung, Luft-/Wasser-Wärmepumpe
Details
Objektbeschreibung
Willkommen in den Floragärten - Wohnen am Waldrand, Leben bei Leipzig!
Entdecken Sie Ihr neues Zuhause in den Floragärten Naunhof - einem exklusiven Wohnquartier, das naturnahe Ruhe und stadtnahe Lage perfekt vereint. Hier entstehen bis 2027 insgesamt 120 hochwertige Eigentumswohnungen - eingebettet in eine grüne...
Ausstattung
Grundausstattung ohne Aufpreis:
- Wohnbereiche mit Echtholzparkett in Eiche Classic geölt + weiße Sockelleisten
- Balkon / Terrasse / Garten
- Badezimmer mit Qualitätsausstattung von Villeroy & Boch, Hansgrohe, Geberit, Kaldewei, Busch & Jaeger
- Wand - & Bodenfliesen im Bad in Feinsteinzeug Villeroy...
Preisinformation
Nettorendite Soll in %: 3,53
Soll-Mieteinnahmen pro Jahr: 11.622,60 EUR
Weitere Informationen
Sonstiges
Alle Angaben sind ohne Gewähr und basieren ausschließlich auf Informationen, die uns von unserem Auftraggeber zur Verfügung gestellt wurden. Wir übernehmen keine Gewähr für die Vollständigkeit, Richtigkeit und Aktualität dieser Angaben.
Stichworte
Tiefgarage vorhanden, Stellplatz vorhanden, Anzahl der...
Anbieter der Immobilie
Online-ID: 2lw2e5s
Referenznummer: Granitweg 17 BF6 WE 6.33
Finde Angebote wie dieses
Hier geht es zu unserem Impressum, den Allgemeinen Geschäftsbedingungen, den Hinweisen zum Datenschutz und nutzungsbasierter Online-Werbung.