

Immoraum GmbH
Herr Raphael Jung
+49 ···
Nr. anzeigenPreise & Kosten
Kaution
3 Bruttomonatsmieten
Provision für Mieter
provisionsfrei
Warum sehe ich diese Anzeige? – Du siehst diese Anzeige basierend auf Ihrer Navigation auf unserer Website und den Suchkriterien, die du verwendet hast.
Lage
Die Büroimmobilie liegt im Stuttgarter Stadtteil Plieningen, nur wenige Minuten von der Universität Hohenheim entfernt. Dank der Nähe zur A8 und dem Flughafen Stuttgart sowie mehreren Bushaltestellen ist sie optimal an den Straßen- und Nahverkehr angebunden.
Die Umgebung vereint Gewerbe- und Wohngebiete und bietet...
Büro-/Praxisfläche
Baujahr
1976
Bezug
auf Anfrage
Energie & Heizung
Warum sehe ich diese Anzeige? – Du siehst diese Anzeige basierend auf Ihrer Navigation auf unserer Website und den Suchkriterien, die du verwendet hast.
Wärme
Strom
Energieausweistyp
Verbrauchsausweis
Gebäudetyp
Nicht-Wohngebäude
Baujahr laut Energieausweis
1976
Endenergieverbrauch (Wärme)
89,00 kWh/(m²·a) - Warmwasser enthalten
Endenergieverbrauch (Strom)
64,00 kWh/(m²·a) - Warmwasser enthalten
Weitere Energiedaten
Energieträger
Öl
Details
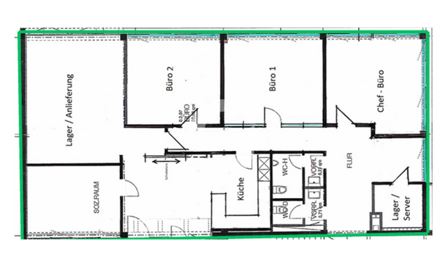
Objektbeschreibung
Die ca. 204 m² große Büroeinheit im Erdgeschoss ist ab sofort bezugsfertig und wird als Untermiete angeboten. Helle Räume mit großen Fenstern und elektrischen Jalousien schaffen eine angenehme Arbeitsatmosphäre.
Ausstattung
Ausstattung:
Gegensprechanlage, leistungsstarke EDV-Verkabelung, flexible Raumgestaltung, getrennte Sanitäranlagen, voll ausgestattete Küche, Pausenraum sowie Kassettendecke mit integrierter Beleuchtung.
Besonderes Extra: Zugang zur Terrasse, vier Außenstellplätze und ein ca. 27 m² großer Lagerraum im Untergeschoss...
Weitere Informationen
Sonstiges
Noch nicht das Richtige? Wir führen weitere Objekte im Großraum Stuttgart. Sprechen Sie mit unseren Beratern. Gemeinsam finden wir Ihr Wunschobjekt! Wir freuen uns auf Ihre Kontaktaufnahme!
Nach den §§ 16, 16 a EnEV ist der Eigentümer, Verkäufer, Vermieter, Verpächter und Leasinggeber bei der Vermarktung...
Anbieter der Immobilie
Immoraum GmbH
Uhlandstraße 14, 70182 Stuttgart

Online-ID: 2lw3d5c
Referenznummer: IRx1895/G1/E1/Eh1
Finde Angebote wie dieses
Hier geht es zu unserem Impressum, den Allgemeinen Geschäftsbedingungen, den Hinweisen zum Datenschutz und nutzungsbasierter Online-Werbung.