
Immobilien Kühn
Herrn Michael Kühn
Kontaktiere den Anbieter schriftlich, es ist keine Telefonnummer hinterlegt.
Preise & Kosten
Provision für Käufer
provisionsfrei
Lage
Die Maisonettewohnung befindet sich in der Ortslage eines idyllischen Stadtteils in Grevenbroich Langwaden. Der Stadtteil ist geprägt von einer familiären Atmosphäre und einer guten Infrastruktur. In unmittelbarer Umgebung ein den beiden Nachbarorten Neukirchen und Wevelinghoven finden sich Geschäfte des täglichen Bedarfs...
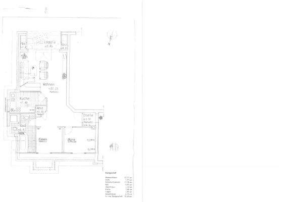
Die Wohnung
Kategorie
Maisonette
Wohnungslage
2. Geschoss
Bezug
Absprache
Wohnanlage
Energie & Heizung
Warum sehe ich diese Anzeige? – Du siehst diese Anzeige basierend auf Ihrer Navigation auf unserer Website und den Suchkriterien, die du verwendet hast.
Energieausweistyp
Verbrauchsausweis
Gebäudetyp
Wohngebäude
Baujahr laut Energieausweis
2001
Wesentliche Energieträger
Gas
Gültigkeit
26.08.2018 bis 26.06.2028
Endenergieverbrauch
74,51 kWh/(m²·a)
Weitere Energiedaten
Energieträger
Gas
Heizungsart
Zentralheizung
Details
Objektbeschreibung
Diese charmante Maisonettewohnung befindet sich in einem gepflegten Gebäude aus dem Jahr 2001. Das zweistöckige Gebäude verfügt über insgesamt zwei Etagen und die Wohnung selbst befindet sich auf der zweiten Etage. Im Jahr 2024 wurde die Immobilie zuletzt modernisiert es wude eine neue Gasbrenntwertheizung verbaut und...
Ausstattung
Die Immobilie verfügt über ein Badezimmer, das mit einer Badewanne, einer Dusche und gleich 2 Fensters ausgestattet ist. Zudem ist eine Einbauküche vorhanden und auch Rollläden sind an den schrägen Dachfenster vorhanden. Die Bodenbeläge bestehen aus hochwertigem Parkett. Des Weiteren gibt es eine Gästetoilette in der...
Preisinformation
1 Stellplatz, Kaufpreis: 12.000,00 EUR
Weitere Informationen
Stichworte
Carport vorhanden, Anzahl der Schlafzimmer: 2, Anzahl der Badezimmer: 1, Anzahl der separaten WCs: 1, Anzahl Balkone: 1, Balkon-Terrassen-Fläche: 8,00 m², Kellerfläche: 12,00 m², 2 Etagen, Lage im Ort, modernisiert: 2024
Anbieter der Immobilie
Immobilien Kühn
Lindenstr. 15, 41515 Grevenbroich
Herrn Michael Kühn
Dein Ansprechpartner
Kontaktiere den Anbieter schriftlich, es ist keine Telefonnummer hinterlegt.
Online-ID: 2lw3n5s
Referenznummer: 588464#8MPwg4
Finde Angebote wie dieses
Hier geht es zu unserem Impressum, den Allgemeinen Geschäftsbedingungen, den Hinweisen zum Datenschutz und nutzungsbasierter Online-Werbung.