
Rustler Immobilientreuhand GmbH
Frau Lena Doll
+43 ···
Nr. anzeigenPreise & Kosten
inkl. Betriebskosten
Kaution
8.500,00
Provision für Mieter
3 bmm
Warum sehe ich diese Anzeige? – Du siehst diese Anzeige basierend auf Ihrer Navigation auf unserer Website und den Suchkriterien, die du verwendet hast.
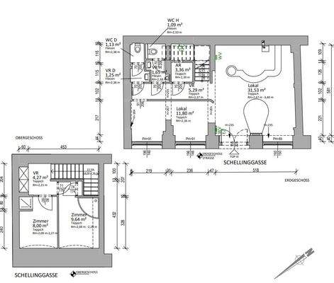
Die Ladenfläche
Kategorie
Laden
Bezug
sofort
Energie & Heizung
Warum sehe ich diese Anzeige? – Du siehst diese Anzeige basierend auf Ihrer Navigation auf unserer Website und den Suchkriterien, die du verwendet hast.
Heizwärmebedarf (HWB)
107,92 kWh/(m²·a)
Weitere Energiedaten
Energieträger
Gas
Heizungsart
Etagenheizung
Details
Objektbeschreibung
Charaktervolles Geschäftslokal in Toplage Schellinggasse 3, 1010 WienDirekt hinter dem Ronacher neben dem Palais Coburg
In exquisiter Innenstadtlage, nur wenige Schritte vom Ronacher entfernt und angrenzend an das Palais Coburg, befindet sich dieses charaktervolle Geschäftslokal mit vielseitigen Nutzungsmöglichkeiten...
Preisinformation
Nettokaltmiete: 2.133,27 EUR
Weitere Informationen
Stichworte
Nutzfläche: 79,00 m²
Anbieter der Immobilie
Online-ID: 2lw595g
Referenznummer: 141/84074
Finde Angebote wie dieses
Hier geht es zu unserem Impressum, den Allgemeinen Geschäftsbedingungen, den Hinweisen zum Datenschutz und nutzungsbasierter Online-Werbung.