
Bero Immobilien GmbH
Frau Beatrix Fötsch
+43 ···
Nr. anzeigenPreise & Kosten
Provision für Käufer
3% des Kaufpreises zzgl. 20% USt.
Das Haus
Kategorie
Doppelhaushälfte
Baujahr
2024
Energie & Heizung
Warum sehe ich diese Anzeige? – Du siehst diese Anzeige basierend auf Ihrer Navigation auf unserer Website und den Suchkriterien, die du verwendet hast.
Heizwärmebedarf (HWB)
37,60 kWh/(m²·a)
Gesamtenergieeffizienz (fGEE)
0,68
Weitere Energiedaten
Heizungsart
Fußbodenheizung, Luft-/Wasser-Wärmepumpe
Details
Objektbeschreibung
Exklusive Designer-Doppelhaushälften mit Garten & Dachterrasse in urbaner Ruhelage - 1210 Wien
In einer der attraktivsten Wohngegenden des 21. Bezirks entstehen zwei moderne, architektonisch durchdachte Designerhäuser - stilvoll geplant für Menschen mit gehobenem Anspruch. Großzügige Freiflächen, lichtdurchflutete...
Weitere Informationen
Stichworte
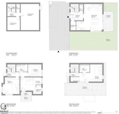
Süd-Süd-West-West-Balkon/Terrasse, Nutzfläche: 334,05 m², Freifläche: 130,45 m², Anzahl der Badezimmer: 2, Anzahl der separaten WCs: 3, Anzahl Balkone: 1, Anzahl Terrassen: 2, Anzahl Loggias: 1, Balkon-Terrassen-Fläche: 55,78 m², Gartenfläche: 74,67 m², Kellerfläche: 55,87 m², Bundesland: Wien, 3 Etagen...
Anbieter der Immobilie
Bero Immobilien GmbH
Elisabethstraße 22/ Top 2, 1010 WIEN
Online-ID: 2lwc65f
Referenznummer: OBGC20250626112805584f4ade82226
Finde Angebote wie dieses
Günstige Immobilienfinanzierung einfach online berechnen
Persönliches Angebot berechnenWarum sehe ich diese Werbung? – Du siehst diese Werbung basierend auf Deiner Navigation auf unserer Website und der von Dir verwendeten Suchkriterien.
Diese Werbung wird bezahlt von durchblicker
Werbung melden
Hier geht es zu unserem Impressum, den Allgemeinen Geschäftsbedingungen, den Hinweisen zum Datenschutz und nutzungsbasierter Online-Werbung.