
Dr. Jürgen Herzog Immobilien e. K. Inhaberin Patricia Melzig
Frau Patricia Melzig
034 ···
Nr. anzeigenPreise & Kosten
Verhandlungsbasis
Provision für Käufer
Die Käuferprovision beträgt 3,57 Prozent vom Kaufpreis inkl. Mehrwertsteuer
Lage
Die Renaissancestadt Torgau bildet einen Knotenpunkt zwischen Herzberg und Leipzig.
Kurz vor der grenze zu Brandenburg gelegen beheimatet Torgau viele Berufspendler, die die gute Bahnanbindung nach Leipzig (aller 30 Minuten) oder nach Herzberg nutzen.
Der Husarenpark ist eine beliebte Wohnanlage von Torgau.
Das...
Die Wohnung
Wohnanlage
Energie & Heizung
Warum sehe ich diese Anzeige? – Du siehst diese Anzeige basierend auf Ihrer Navigation auf unserer Website und den Suchkriterien, die du verwendet hast.
Energieausweis: für diesen Gebäudetyp nicht notwendig
Weitere Energiedaten
Energieträger
Gas
Details
Objektbeschreibung
Zum Kauf angeboten werden drei vermietete Eigentumswohnungen im Husarenpark, in 04860 Torgau. Alle Wohnungen befinden sich im 2. OG.
Das denkmalgeschützte, ehemalige Mannschaftshaus des Husaren-Regiments wurde um 1901 errichtet.
Das Haus wurde 1995 nach WEG-Recht geteilt.
Ausstattung
Das Kaufpaket beinhaltet 3 vermietete Eigentumswohnungen.
Alle Wohnungen befinden sich im selben Haus, im Husarenpark, in 04860 Torgau.
Zu jeder Wohnung gehört ein Kellerabteil als Sondereigentum und ein PKW-Stellplatz als Sondernutzungsrecht, entsprechend der Wohnungsnummer.
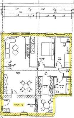
1. Wohnung (WE19):
Bei dieser...
Weitere Informationen
Sonstiges
Zusammenfassung:
- Paketkauf von 3-Eigentumswohnungen im Husarenpark, in 04860 Torgau
- alle Wohnungen sind im selben Objekt, jeweils im 2.OG
- zu jeder Wohnung gehört ein PKW-Stellplatz als Sondereigentum
und das Sondernutzungsrecht an einen Kellerabteil
- gesamte Mietfläche (aller drei...
Anbieter der Immobilie
Dr. Jürgen Herzog Immobilien e. K. Inhaberin Patricia Melzig
Breite Str. 6, 04860 Torgau
Online-ID: 2lwd35w
Referenznummer: HP Paket (1/418)
Finde Angebote wie dieses
Hier geht es zu unserem Impressum, den Allgemeinen Geschäftsbedingungen, den Hinweisen zum Datenschutz und nutzungsbasierter Online-Werbung.