Wohnzone Schlössl GmbH

Herr Bernhard Weidenthaler

MATTSEE MOORBAD - WOHNBAUFÖRDERUNG MÖGLICH

€ 874.500
Kaufpreis
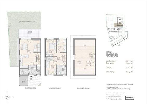
159,51 m²
Wohnfläche ca.
5
Zimmer
k.A.
Grundstücksfl.
Finanzierung berechnen mit durchblicker

Der Anbieter dieses Objekts hat gegenüber der AVIV Germany GmbH als Betreiber dieses Online-Marktplatzes erklärt, nicht als Unternehmer im Sinne des § 1 KSchG zu handeln. Die im Verbraucherschutzrecht der Union verankerten Verbraucherrechte (insbesondere Informationspflichten und Rücktritts- bzw. Widerrufsrechte) finden auf den Vertrag zwischen dem Anbieter des Objekts und Ihnen (dem Interessenten) keine Anwendung.

Gewerblicher Anbieter

Der Anbieter dieses Objekts hat gegenüber der AVIV Germany GmbH als Betreiber dieses Online-Marktplatzes erklärt, als Unternehmer im Sinne des § 1 KSchG zu handeln.

AdresseStraße nicht freigegeben
5163 Mattsee 
Auf Karte ansehen

Preise & Kosten

Kaufpreis € 874.500

Provision für Käufer

Bitte beachte, das Angebot kann bei Vertragsabschluss die Zahlung einer Provision beinhalten. Weitere Informationen erhältst Du vom Anbieter.

Lage

In idyllischer Lage nahe dem Mattsee entstehen moderne Reihenhäuser mit hochwertiger Ausstattung.

Das Haus

Kategorie

Reihenmittelhaus

  • Zustand: Erstbezug, Neubau
  • Terrasse
  • Bad mit Fenster, Wanne und Dusche
  • Böden: Parkett
  • barrierefrei

Energie & Heizung

Heizwärmebedarf (HWB)

43,00 kWh/(m²·a)

Gesamtenergieeffizienz (fGEE)

0,75

Weitere Energiedaten

Heizungsart

Fußbodenheizung, Luft-/Wasser-Wärmepumpe

Details

Objektbeschreibung

Ihr neues Zuhause in Mattsee - modernes Reihenhaus mit Garten

Willkommen in Ihrem neuen Zuhause in Mattsee. Dieses moderne Reihenhaus bietet Ihnen auf 159,51 m² Wohnfläche und 5 Zimmern viel Platz für Ihre individuellen Bedürfnisse - sei es für die Familie, Homeoffice oder einfach mehr Raum zum Wohlfühlen.

Der...

Mehr anzeigen

Weitere Informationen

Stichworte
Carport vorhanden, Süd-Balkon/Terrasse, Anzahl der Badezimmer: 1, Anzahl der separaten WCs: 2, Anzahl Terrassen: 1, Balkon-Terrassen-Fläche: 15,92 m², Gartenfläche: 74,76 m², Bundesland: Salzburg, Wohnungsnr.: 3

Anbieter der Immobilie

Partner

Wohnzone Schlössl GmbH

Herzog Odilo-Straße 4, 5310 MONDSEE

user

Herr Bernhard Weidenthaler

Dein Ansprechpartner

Anbieter-Website Anbieter-Profil Anbieter-Impressum

Online-ID: 2lwd65f

Referenznummer: OBGC20220722081732100f39596ed37

Finde Angebote wie dieses

imageimageimage

Günstige Immobilienfinanzierung einfach online berechnen

Persönliches Angebot berechnen

Hier geht es zu unserem Impressum, den Allgemeinen Geschäftsbedingungen, den Hinweisen zum Datenschutz und nutzungsbasierter Online-Werbung.