

René Müller - Der ImmobilienCoach
Herrn René Müller
089 ···
Nr. anzeigenPreise & Kosten
Provision für Käufer
1,19% inkl. MwSt.
Lage
85521 Ottobrunn
Die Dachgeschosswohnung befindet sich im Herzen von Ottobrunn, einem idyllischen Stadtteil im Südosten von München.
Die kleine Mehrfamilienhaus (6 WHG) liegt in einer ruhigen Anliegerstraße.
Kurze Wege :
Einkaufsmöglichkeiten fußläufig erreichbar.
Nur 550m zum Bahnhof - Beste Anbindung an das...
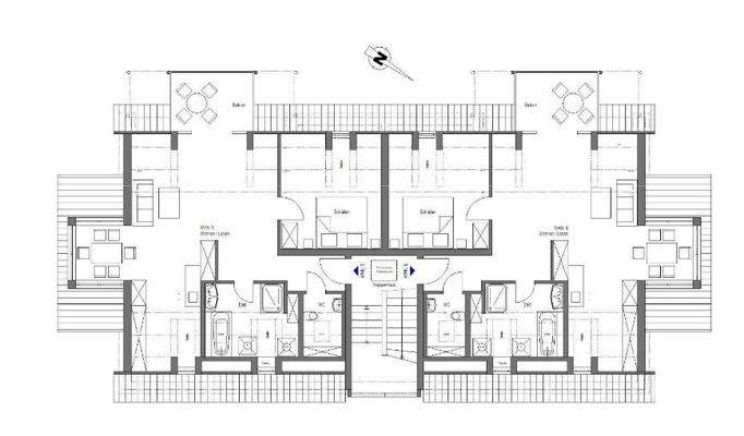
Die Wohnung
Wohnungslage
2. Geschoss (Dachgeschoss)
Bezug
sofort
Wohnanlage
Energie & Heizung
Warum sehe ich diese Anzeige? – Du siehst diese Anzeige basierend auf Ihrer Navigation auf unserer Website und den Suchkriterien, die du verwendet hast.
Energieausweistyp
Bedarfsausweis
Gebäudetyp
Wohngebäude
Baujahr laut Energieausweis
2024
Wesentliche Energieträger
Strom
Gültigkeit
13.03.2024 bis 12.03.2034
Effizienzklasse
A+
Endenergiebedarf
24,80 kWh/(m²·a)
Weitere Energiedaten
Energieträger
Elektro
Details
Objektbeschreibung
Das ursprüngliche 4 Familienhaus wurde 2023 /24 aufgestockt und durch die 2 hochmodernen Dachgeschosswohnungen erweitert. Das Ursprungshaus ist von 1959. Die Wohnungen oben wurden inkl. Wände, Dachstuhl komplett neu erstellt. Alle Leitungen Elektro, Wasser, Abwasser , Heizung wurden neu vom Keller hochgezogen.
Das...
Ausstattung
Exklusive Ausstattung mit neuester Technik:
+ Fußbodenheizung
+ Kontrollierte Wohnraumlüftung mit Wärmerückgewinnung
+ Video-Gegensprechanlage, 10 Zoll Farbdisplay
+ Wohnungseingangstür - RC3 + 44 dB + Rauchdicht - 5 Fachverriegelung
+ Hochwertige Wandbündige Türen mit verdeckte Scharniere
+ Griffwerk...
Preisinformation
2 Stellplätze, Kaufpreis je: 12.500,00 EUR
Weitere Informationen
Stichworte
Stellplatz vorhanden, Anzahl der Schlafzimmer: 1, Anzahl der Badezimmer: 1, Anzahl der separaten WCs: 2, Anzahl Balkone: 3, Anzahl Terrassen: 1, 2 Etagen
Anbieter der Immobilie
René Müller - Der ImmobilienCoach
Gartenstraße 48, 82110 Germering

Online-ID: 2lwdt5t
Referenznummer: 5179#FfVL1
Finde Angebote wie dieses
Hier geht es zu unserem Impressum, den Allgemeinen Geschäftsbedingungen, den Hinweisen zum Datenschutz und nutzungsbasierter Online-Werbung.