
Evernest GmbH
Felix Knop
+49 ···
Nr. anzeigenPreise & Kosten
Provision für Käufer
7.14 inkl. MwSt.
Bei Abschluss eines notariellen Kaufvertrages ist eine Käuferprovision vom Käufer in Höhe von 7.14 % inkl. MwSt. aus dem Kaufpreis fällig.
Lage
Historisches Flair trifft urbane Lebensqualität
Die Immobilie befindet sich in Potsdam-Babelsberg, einem der beliebtesten und geschichtsträchtigsten Stadtteile der brandenburgischen Landeshauptstadt. Die Umgebung ist geprägt von liebevoll sanierten Altbauten, kleinen Stadtvillen und denkmalgeschützten Weberhäusern, die...
Das Haus
Kategorie
Einfamilienhaus
Baujahr
1870
Energie & Heizung
Warum sehe ich diese Anzeige? – Du siehst diese Anzeige basierend auf Ihrer Navigation auf unserer Website und den Suchkriterien, die du verwendet hast.
Energieausweis: für diesen Gebäudetyp nicht notwendig
Weitere Energiedaten
Energieträger
Gas
Details
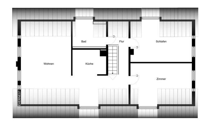
Objektbeschreibung
Historisches Weberhaus in Potsdam-Babelsberg - stilvoll saniert mit drei Wohneinheiten und flexiblem Nutzungspotenzial
Dieses denkmalgeschützte Weberhaus in Potsdam-Babelsberg präsentiert sich nach aufwendiger Sanierung und behutsamer Modernisierung in einem außergewöhnlich gepflegten Zustand. Die Verbindung aus...
Ausstattung
- Denkmalgeschütztes, aufwendig saniertes Weberhaus
- Drei abgeschlossene Wohneinheiten mit separaten Zugängen
- Erdgeschosswohnung mit ca. 120?m², hochwertiges Feinsteinzeug, originale Innentüren
- Dachgeschosswohnung mit ca. 100?m², Parkett, Bad mit Granit & Marmor, Granitflur
- Separates Apartment (ca...
Weitere Informationen
Stichworte
Nutzfläche: 6,00 m², Anzahl der Badezimmer: 3, Anzahl der separaten WCs: 1, 2 Etagen
Anbieter der Immobilie
Online-ID: 2lwek5a
Referenznummer: L-DWNHX6C
Finde Angebote wie dieses
Hier geht es zu unserem Impressum, den Allgemeinen Geschäftsbedingungen, den Hinweisen zum Datenschutz und nutzungsbasierter Online-Werbung.