

Windisch Immobilien, Inh. Martin Windisch
Herr Niklas Windisch
004 ···
Nr. anzeigenPreise & Kosten
Provision für Käufer
provisionsfrei
Lage
ÜBER OLCHING
Olching ist eine Stadt im oberbayerischen Landkreis Fürstenfeldbruck und verzeichnet über 28.000 Einwohner. Der Ort Olching liegt ca. 10 km westlich von München sowie in unmittelbarer Nähe des Fünfseenlands.
INFRASTRUKTUR
Olching bietet sowohl im Ort als auch im Gewerbegebiet alle...
Das Haus
Kategorie
Reihenmittelhaus
Baujahr
1971
Bezug
frei ab sofort!
Energie & Heizung
Warum sehe ich diese Anzeige? – Du siehst diese Anzeige basierend auf Ihrer Navigation auf unserer Website und den Suchkriterien, die du verwendet hast.
Energieausweistyp
Verbrauchsausweis
Gebäudetyp
Wohngebäude
Baujahr laut Energieausweis
2020
Wesentliche Energieträger
GAS
Gültigkeit
bis 28.07.2035
Effizienzklasse
C
Endenergieverbrauch
82,00 kWh/(m²·a)
Weitere Energiedaten
Haustyp
Massivhaus
Energieträger
Gas
Heizungsart
Zentralheizung
Details
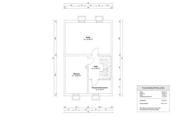
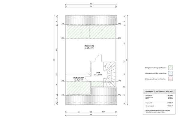
Objektbeschreibung
WINDISCH IMMOBILIEN präsentiert Ihnen ein gemütliches Reihenmittelhaus mit ca. 144?m² Wohnfläche, welches in familienfreundlicher Wohnlage von Olching errichtet wurde. Das Haus überzeugt durch eine klare und großzügige Raumstruktur mit ausreichend Tageslicht sowie einer guten, funktionalen Grundrissgestaltung, die individuell...
Ausstattung
ERDGESCHOSS:
+ Lichtdurchflutetes Gäste-WC
+ Offene, gemütliche Küche
+ Großer Wohn-/Essbereich
+ Anschluss im WZ für Kamin
+ elektrische Rolläden mit Zeitschaltung
OBERGESCHOSS:
+ 2 Kinderzimmer in unterschiedlicher Größe
+ Geräumiges Schlafzimmer
+ Lichtdurchflutetes Badezimmer mit...
Preisinformation
1 Garagenstellplatz
Weitere Informationen
Sonstiges
Es liegt ein Energieverbrauchsausweis vor.
Dieser ist gültig bis 28.7.2035.
Endenergieverbrauch beträgt 82.00 kwh/(m²*a).
Wesentlicher Energieträger der Heizung ist Gas.
Das Baujahr des Objekts lt. Energieausweis ist 2020.
Die Energieeffizienzklasse ist C.
Folgen Sie uns auf...
Anbieter der Immobilie

Online-ID: 2lwet55
Referenznummer: 3427
Finde Angebote wie dieses
Hier geht es zu unserem Impressum, den Allgemeinen Geschäftsbedingungen, den Hinweisen zum Datenschutz und nutzungsbasierter Online-Werbung.