

LBS Immobilien GmbH
Frau Andrea Reinert-Clemens
068 ···
Nr. anzeigenPreise & Kosten
Provision für Käufer
3,57 % inkl. MwSt.
Lage
Besseringen ist ein Stadtteil von Merzig und über die B51 nur wenige Minuten vom Stadtzentrum von Merzig entfernt.
Im Ort selbst besteht eine intakte Infrastruktur mit Einkaufsmöglichkeiten, Kindergarten, Ärzten und Bankfilialen.
Besseringen liegt verkehrsgünstig direkt an der Autobahn A8 mit guter...
Das Haus
Kategorie
Reihenmittelhaus
Bezug
sofort
Energie & Heizung
Warum sehe ich diese Anzeige? – Du siehst diese Anzeige basierend auf Ihrer Navigation auf unserer Website und den Suchkriterien, die du verwendet hast.
Energieausweistyp
Verbrauchsausweis
Gebäudetyp
Wohngebäude
Baujahr laut Energieausweis
1995
Wesentliche Energieträger
Öl
Gültigkeit
04.04.2023 bis 04.04.2033
Effizienzklasse
C
Endenergieverbrauch
85,20 kWh/(m²·a) - Warmwasser enthalten
Weitere Energiedaten
Haustyp
Massivhaus
Energieträger
Öl
Heizungsart
Zentralheizung
Details
Objektbeschreibung
Herzlich Willkommen in Besseringen, direkt vor den Toren von Merzig.
In einer wenig befahrenen Seitenstraße von Besseringen, direkt am Ufer der Saar steht dieses Einfamilienhaus mit knapp 180 m² Wohnfläche.
Das große Einfamilienhaus wurde ursprünglich in den 1930er Jahren erbaut und seither nicht nur gut in...
Ausstattung
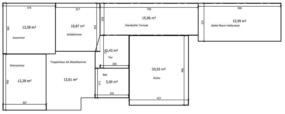
Aufteilung:
Erdgeschoss:
2 (Schlaf-)Zimmer
Gäste-WC
Hobbyraum
überdachte Terrasse
Heizungskeller
Öllager
Keller- und Lagerräume
Obergeschoss:
Wohn- und Esszimmer
(Schlaf-)Zimmer
Große Küche
Badezimmer
Abstellraum
Terrasse
Dachgeschoss:
3...
Weitere Informationen
Stichworte
Nutzfläche: 90,00 m², Anzahl der Schlafzimmer: 6, Anzahl der Badezimmer: 2, Anzahl der separaten WCs: 1, Anzahl Balkone: 1, Anzahl Terrassen: 1, Balkon-Terrassen-Fläche: 75,00 m², Bundesland: Saarland, 3 Etagen, modernisiert: 2017, nur Nichtraucher
Anbieter der Immobilie
LBS Immobilien GmbH
Beethovenstraße 35-39, 66111 Saarbrücken

Online-ID: 2lwh75m
Referenznummer: 2025-ARC-00599
Finde Angebote wie dieses
Hier geht es zu unserem Impressum, den Allgemeinen Geschäftsbedingungen, den Hinweisen zum Datenschutz und nutzungsbasierter Online-Werbung.