Emre Öngel Immobilien GmbH & Co Kg

Louis Brendel

Zweifach Panorama - Ihr EFH in Syke mit doppeltem Ausblick, Garten und Garage!

€ 690.000
Kaufpreis
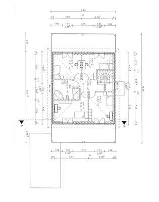
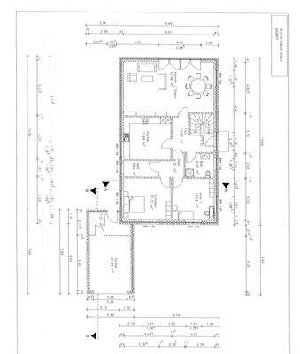
191,51 m²
Wohnfläche ca.
7
Zimmer
731 m²
Grundstücksfl. ca.

Der Anbieter dieses Objekts hat gegenüber der AVIV Germany GmbH als Betreiber dieses Online-Marktplatzes erklärt, nicht als Unternehmer im Sinne des § 1 KSchG zu handeln. Die im Verbraucherschutzrecht der Union verankerten Verbraucherrechte (insbesondere Informationspflichten und Rücktritts- bzw. Widerrufsrechte) finden auf den Vertrag zwischen dem Anbieter des Objekts und Ihnen (dem Interessenten) keine Anwendung.

Gewerblicher Anbieter

Der Anbieter dieses Objekts hat gegenüber der AVIV Germany GmbH als Betreiber dieses Online-Marktplatzes erklärt, als Unternehmer im Sinne des § 1 KSchG zu handeln.

AdresseAlte Poststraße 4
28857 Syke 
(Steimke)
Auf Karte ansehen

Preise & Kosten

Kaufpreis € 690.000

Provision für Käufer

3,57%

Lage

Das Einfamilienhaus liegt in einer besonders familienfreundlichen Umgebung. Alle wichtigen Einrichtungen des täglichen Lebens sind schnell erreichbar und machen den Standort zu einem idealen Zuhause für Eltern mit Kindern.
Kindergärten sowie Grund- und weiterführende Schulen befinden sich in direkter Nähe, sodass die...

Mehr anzeigen

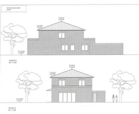
Das Haus

Baujahr

2012

Bezug

Ab sofort

  • Zustand: gepflegt
  • Garten, Balkon
  • 2 Stellplätze: Garage
  • Bad mit Wanne und Dusche, Gäste-WC
  • Einbauküche
  • Böden: Fliesenboden
  • Weitere Räume: Abstellraum

Energie & Heizung

Weitere Energiedaten

Energieträger

Elektro

Heizungsart

offener Kamin

Details

Objektbeschreibung

Willkommen in Ihrem neuen Zuhause in Syke!

Dieses großzügige Einfamilienhaus überzeugt mit einer durchdachten Raumaufteilung, viel Platz für die ganze Familie und gleich mehreren Außenbereichen zum Wohlfühlen.
Auf einer Wohnfläche von rund 191,6 m² erwartet Sie ein modernes und zugleich gemütliches...

Mehr anzeigen

Ausstattung

Dieses Einfamilienhaus überzeugt mit einer Ausstattung, die kaum Wünsche offen lässt!

Eckdaten:

- Baujahr: 2012
- Grundstück: 731 qm
- Wohnfläche: 191.51 qm
- Nutzfläche: 32,2 1m
- 7 Zimmer
- 6 Schlafzimmer
- 2 Bäder
- 2 WC
- Fußbodenheizung
- Elektrische Rollläden
- Terrasse...

Mehr anzeigen

Preisinformation

2 Garagenstellplätze

Weitere Informationen

Sonstiges
Alle Angaben in diesem Exposé wurden sorgfältig und so vollständig wie möglich gemacht. Sie beruhen auf den Informationen des Eigentümers und dienen einer ersten Information. Eine Gewähr für die Richtigkeit, Vollständigkeit oder Aktualität der Angaben wird nicht übernommen. Maßgeblich sind ausschließlich die im...

Mehr anzeigen

Anbieter der Immobilie

Partner

Emre Öngel Immobilien GmbH & Co Kg

Am Tabakquartier 62, 28197 Bremen

user

Louis Brendel

Dein Ansprechpartner

Anbieter-Website Anbieter-Profil Anbieter-Impressum

Online-ID: 2lwju5c

Referenznummer: 4096934

Finde Angebote wie dieses

imageimageimage

Hier geht es zu unserem Impressum, den Allgemeinen Geschäftsbedingungen, den Hinweisen zum Datenschutz und nutzungsbasierter Online-Werbung.