
KLN e.K.
Herr Avi Manachimov
+49 ···
Nr. anzeigenPreise & Kosten
Kaution
3 Brutto-Monatsmieten
Provision für Mieter
2,38 Netto-Monatsmiete(n) inkl. 19% MwSt.
Warum sehe ich diese Anzeige? – Du siehst diese Anzeige basierend auf Ihrer Navigation auf unserer Website und den Suchkriterien, die du verwendet hast.
Lage
Diese Gewerbeeinheit liegt an der Türkenstraße, im Universitäts-, Künstler- und Museumsviertel Maxvorstadt. Direkt gegenüber des Hauses befinden sich unter anderem das Museum Brandhorst und die Pinakothek der Moderne. Der Königsplatz, der Odeonsplatz sowie der Englisch Garten sind fußläufig schnell zu erreichen. Viele...
Die Ladenfläche
Kategorie
Laden
Baujahr
Altbau
Bezug
sofort
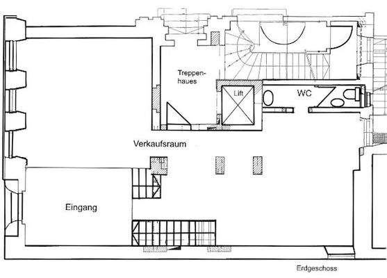
Erdgeschoss
Energie & Heizung
Warum sehe ich diese Anzeige? – Du siehst diese Anzeige basierend auf Ihrer Navigation auf unserer Website und den Suchkriterien, die du verwendet hast.
Energieausweis: für diesen Gebäudetyp nicht notwendig
Weitere Energiedaten
Heizungsart
Zentralheizung
Details
Objektbeschreibung
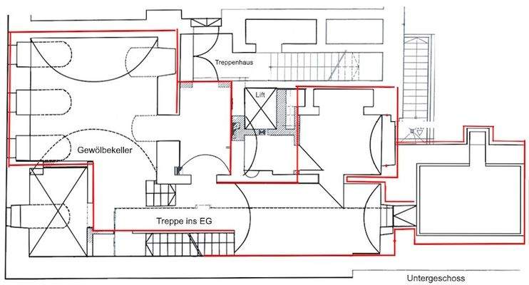
Diese kreative Ladeneinheit befindet sich im Erdgeschoss eines denkmalgeschützten Wohn- und Geschäftshauses direkt an der Türkenstraße. Im loftartigen Ladenbereich führt eine Treppe ins Untergeschoss, welches einen Gewölbekeller mit vier in sich verbundenen Räumen aufweist. Der Ladenbereich im Erdgeschoss sowie das gesamte...
Ausstattung
5 Räume insgesamt
Ladenfläche und Gewölbekeller im Vordergebäude
1 WC-Einheit
1 Küche
Klinkerboden im EG und UG
Auf die Miete und Nebenkosten werden 19% MwSt. optiert.
Diese Gewerbeeinheit ist nicht für Gastronomie geeignet!
Weitere Informationen
Sonstiges
KLN-Immobilien ist vom Eigentümer für die Vermietung exklusiv beauftragt.
Wenn Sie Fragen zum Objekt haben bzw. einen Besichtigungstermin wünschen, kontaktieren Sie uns bitte per E-Mail unter avi@kln-immobilien.de oder telefonisch unter der Nummer 089-24 25 75-70.
Weitere interessante Objekte finden...
Anbieter der Immobilie
KLN e.K.
Hochbrückenstr. 8, 80331 München
Online-ID: 2lwlq59
Referenznummer: 3270
Finde Angebote wie dieses
Hier geht es zu unserem Impressum, den Allgemeinen Geschäftsbedingungen, den Hinweisen zum Datenschutz und nutzungsbasierter Online-Werbung.