

Grupo Noruego Costa Blanca S.L.
Frau Elvira Wabnik
+49 ···
Nr. anzeigenPreise & Kosten
Provision für Käufer
provisionsfrei
Das Haus
Kategorie
Villa
Baujahr
2026
Details
Objektbeschreibung
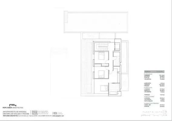
Luxuriöse Neubau-Villa in Moraira - nur 3 km vom Meer entfernt
Modernes Design mit hochwertiger Ausstattung
In der malerischen Küstenstadt Moraira gelegen, ist diese atemberaubende Neubauvilla nur 3 km vom glitzernden Mittelmeer entfernt. Dieses zweistöckige Haus mit einem Untergeschoss verfügt über ein modernes und...
Anbieter der Immobilie
Grupo Noruego Costa Blanca S.L.
Calle Escorpiones, CC Punta Marina, Local 0.10, 03185 TORREVIEJA, ALICANTE

Online-ID: 2lwzw5z
Referenznummer: N8515-3
Finde Angebote wie dieses
Hier geht es zu unserem Impressum, den Allgemeinen Geschäftsbedingungen, den Hinweisen zum Datenschutz und nutzungsbasierter Online-Werbung.