

Aengevelt Immobilien GmbH & Co KG
Team Gewerbliche Vermietung
+49 ···
Nr. anzeigenPreise & Kosten
Provision für Mieter
Weitere Informationen siehe Provisionshinweis.
Warum sehe ich diese Anzeige? – Du siehst diese Anzeige basierend auf Ihrer Navigation auf unserer Website und den Suchkriterien, die du verwendet hast.
Lage
Das Objekt befindet sich in Düsseldorf-Benrath. Es bestehen gute und einfache Verkehrsverbindungen über die Bonner Straße/Kölner Landstraße. Die nahegelegene Münchener Straße verbindet Sie direkt mit der ca. 10 Minuten entfernten Düsseldorfer Innenstadt und dem Hauptbahnhof. Die Universitätskliniken/Universität Düsseldorf...
Büro-/Praxisfläche
Kategorie
Bürofläche
Baujahr
2015
Bezug
Nach Absprache
Energie & Heizung
Warum sehe ich diese Anzeige? – Du siehst diese Anzeige basierend auf Ihrer Navigation auf unserer Website und den Suchkriterien, die du verwendet hast.
Wärme
Strom
Energieausweistyp
Bedarfsausweis
Gebäudetyp
Nicht-Wohngebäude
Baujahr laut Energieausweis
2015
Wesentliche Energieträger
Fernwärme
Gültigkeit
seit 18.06.2015
Endenergiebedarf (Wärme)
121,10 kWh/(m²·a)
Endenergiebedarf (Strom)
127,60 kWh/(m²·a)
Weitere Energiedaten
Energieträger
Fernwärme
Details
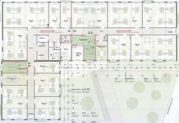
Objektbeschreibung
Das 3-geschossige Bürogebäude ist mit einer vorgesetzten Aluminiumfassade versehen. Die Etagen erreichen Sie bequem über den Personenaufzug oder über zwei Treppenhäuser. Eine klare Grundrissgestaltung mit Einzel-, Kombi- oder Großraumbüros zeichnen die Büroetagen aus. Die Konferenzräume im 2. Obergeschoss sind klimatisiert...
Ausstattung
- Teeküchen
- behindertengerechtes WC im Untergeschoss
- Dusche im Untergeschoss
- Veranstaltungsräume können nach Absprache angemietet werden
- Es besteht die Möglichkeit einer kostenpflichtigen Übernahme von diversen Büromöbeln (Schreibtische, Stühle, Besprechungstisch, Sideboards etc.)
Weitere Informationen
Provisionshinweis
provisionspflichtig
Im Anmietungsfall beträgt die Maklerprovision bei Mietverträgen von bis zu 5 Jahren Laufzeit 3,0 Netto-Monatsmieten, bei einer Vertragsdauer von über 5 Jahren 4,0 Netto-Monatsmieten, jeweils zzgl. gesetzlicher Mehrwertsteuer. Die Provision ist verdient / fällig bei...
Anbieter der Immobilie
Aengevelt Immobilien GmbH & Co KG
Kennedydamm 55/Ross-Strasse, 40476 Düsseldorf

Online-ID: 2lx2s5r
Referenznummer: 204727
Finde Angebote wie dieses
Hier geht es zu unserem Impressum, den Allgemeinen Geschäftsbedingungen, den Hinweisen zum Datenschutz und nutzungsbasierter Online-Werbung.