

Koengeter & Krekow Immobilien GmbH
Frau Sophie Sauer
034 ···
Nr. anzeigenPreise & Kosten
Provision für Käufer
7,14 % inkl. gesetzl. MwSt.
Lage
Die Einheiten befinden sich im Stadtteil Zentrum-Nord.
Zwischen Innenstadt, Zoo und Hauptbahnhof gelegen erreicht man von hier aus alle Einrichtungen des täglichen Bedarfs in kurzer Zeit: Einkaufsmöglichkeiten, Cafés und Restaurants, Ärzte Banken, Schulen und Kindergärten.
Das sehenswerte Leipziger Zentrum...
Büro-/Praxisfläche
Kategorie
Bürogebäude
Baujahr
1900
Bezug
Vermietet
Derzeitige Nutzung
vermietet
Energie & Heizung
Warum sehe ich diese Anzeige? – Du siehst diese Anzeige basierend auf Ihrer Navigation auf unserer Website und den Suchkriterien, die du verwendet hast.
Wärme
Energieausweistyp
Verbrauchsausweis
Gebäudetyp
Nicht-Wohngebäude
Gültigkeit
16.03.2023 bis 15.03.2033
Endenergieverbrauch (Wärme)
99,00 kWh/(m²·a)
Weitere Energiedaten
Energieträger
Fernwärme
Details
Objektbeschreibung
Die angebotenen Einheiten befinden sich nur wenige hundert Meter vom Stadtzentrum entfernt im Atriumhaus eines Wohn- und Bürogebäudes im beliebten Zentrum-Nord. Das Gebäude wurde 1995 umfassend kernsaniert.
Das ruhig gelegene Atriumhaus befindet sich im Innenhof des Gebäudekomplexes. Über 4 Etagen erstrecken sich...
Ausstattung
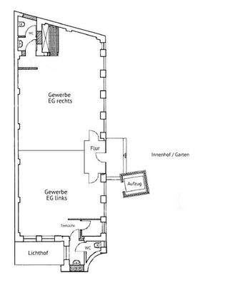
Atriumhaus (bestehend aus 4 Etagen)
- EG: 2 Einheiten, ca. 128 m² Wohn-/ Gewerbefläche
- 1. OG: 2 Einheiten, ca. 128 m² Wohn-/ Gewerbefläche
- 2. OG: 2 Einheiten, ca. 128 m² Wohn-/ Gewerbefläche
- 3. OG: 2 Einheiten, ca. 128 m² Wohn-/ Gewerbefläche
- gläserner Personenaufzug
- Bodenbelag: Laminat, PVC...
Preisinformation
Nettorendite Ist in %: 3,49
Ist-Mieteinnahmen pro Jahr: 34.524,00 EUR
Weitere Informationen
Sonstiges
Die Koengeter & Krekow Immobilien GmbH haftet bei Vorsatz und grober Fahrlässigkeit. Im Falle einfacher Fahrlässigkeit haftet die Koengeter & Krekow Immobilien GmbH nur bei Verletzung wesentlicher Rechte und Pflichten, die sich nach dem Inhalt und Zweck des Maklervertrages ergeben; in diesem Fall ist die...
Anbieter der Immobilie

Online-ID: 2lx2w59
Referenznummer: 6946
Finde Angebote wie dieses
Hier geht es zu unserem Impressum, den Allgemeinen Geschäftsbedingungen, den Hinweisen zum Datenschutz und nutzungsbasierter Online-Werbung.