

Scheepers & Eberhardt Immobilien GmbH
Herr Theo Kleiner
+49 ···
Nr. anzeigenPreise & Kosten
Provision für Käufer
3,57%
Abschreibung/Anlage
Denkmalschutz-Afa
Lage
Das direkt am südlichen Spreeufer liegende Spreeviertel ist ein herausragendes Beispiel für den Reformbau der 20er und 30er Jahre und steht unter Denkmalschutz. Die ursprünglich für die Ingenieure und leitenden Angestellten der großen Industriebetriebe des gegenüberliegenden Spreeufers errichteten Wohnungen zeichnen sich mit...
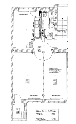
Die Wohnung
Derzeitige Nutzung
vermietet
Wohnanlage
Energie & Heizung
Warum sehe ich diese Anzeige? – Du siehst diese Anzeige basierend auf Ihrer Navigation auf unserer Website und den Suchkriterien, die du verwendet hast.
Energieausweis: für diesen Gebäudetyp nicht notwendig
Weitere Energiedaten
Energieträger
Fernwärme, Gas
Details
Objektbeschreibung
Die vermietete Zwei-Zimmer-Altbauwohnung befindet sich mitten im schönen Spreeviertel.
Die Wohnung liegt im 2. Obergeschoss und verfügt über eine sehr gute Raumaufteilung:
Von der Diele aus lassen sich alle Räume betreten.
Das geflieste Badezimmer besitzt eine Dusche sowie ein Fenster und eine...
Ausstattung
+ Verglaste und beheizte Loggia
+ sehr gute Raumaufteilung
+ Fernwärme
+ Keller
+ Holzdielen
+ Tageslichtbad
Weitere Informationen
Sonstiges
Nach Ihrer ersten Kontaktaufnahme erhalten Sie ein Online-Exposé mit weiteren Informationen.
Stichworte
Anzahl der Badezimmer: 1, Bundesland: Berlin, 4 Etagen, modernisiert: 2000, modernisiert
Anbieter der Immobilie
Scheepers & Eberhardt Immobilien GmbH
Treskowallee 96, 10318 Berlin

Online-ID: 2lx895s
Referenznummer: 3349
Finde Angebote wie dieses
Hier geht es zu unserem Impressum, den Allgemeinen Geschäftsbedingungen, den Hinweisen zum Datenschutz und nutzungsbasierter Online-Werbung.