
DIBOLIVING GmbH & Co. KG
Frau Carina Hubert
Kontaktiere den Anbieter schriftlich, es ist keine Telefonnummer hinterlegt.
Preise & Kosten
Provision für Käufer
provisionsfrei
Lage
Die Immobilie befindet sich in einer ruhigen Ortsrandlage von Potsdam, genauer gesagt im idyllischen Ortsteil Satzkorn. Dieser Teil von Potsdam besticht durch seinen ländlichen Charme und bietet ein hohes Maß an Lebensqualität. Satzkorn liegt eingebettet in eine malerische Naturlandschaft, umgeben von weiten Feldern und...
Das Haus
Kategorie
Einfamilienhaus
Baujahr
1996
Bezug
sofort
Energie & Heizung
Warum sehe ich diese Anzeige? – Du siehst diese Anzeige basierend auf Ihrer Navigation auf unserer Website und den Suchkriterien, die du verwendet hast.
Energieausweistyp
Verbrauchsausweis
Gebäudetyp
Wohngebäude
Baujahr laut Energieausweis
1996
Gültigkeit
16.10.2023 bis 28.03.2034
Effizienzklasse
B
Endenergieverbrauch
74,30 kWh/(m²·a)
Weitere Energiedaten
Heizungsart
offener Kamin
Details
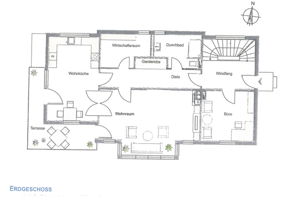
Objektbeschreibung
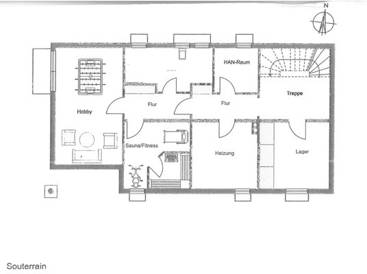
Das im Jahr 1996 errichtete Einfamilienhaus präsentiert sich als voll unterkellertes, massives Natursteinhaus mit heller Verklinkerung. Es verfügt über ein Erdgeschoss, ein Dachgeschoss sowie ein voll ausgebautes Souterrain mit Wohnraumhöhe.
Die gesamte Wohnfläche im EG und DG beträgt ca. 164 m². Das Souterrain bietet...
Ausstattung
Dank der bodentiefen Fenster ist die Immobilie durchgehend hervorragend belichtet. Als Bodenbeläge wurden größtenteils keramische Fliesen gewählt, die sowohl langlebig als auch pflegeleicht sind. Die Innenausstattung ist in einem gepflegtem Zustand.
Die geräumige Küche besticht durch ihre Großzügigkeit und ihren...
Preisinformation
2 Stellplätze
Weitere Informationen
Stichworte
Carport vorhanden, Stellplatz vorhanden, Anzahl der Schlafzimmer: 1, Anzahl der Badezimmer: 2, Anzahl Balkone: 1, Anzahl Terrassen: 1, 3 Etagen
Anbieter der Immobilie

DIBOLIVING GmbH & Co. KG
Zeppelinstr. 123, 14471 Potsdam
Frau Carina Hubert
Dein Ansprechpartner
Kontaktiere den Anbieter schriftlich, es ist keine Telefonnummer hinterlegt.
Online-ID: 2lxba5x
Referenznummer: 10376#ztCIOo
Finde Angebote wie dieses
Hier geht es zu unserem Impressum, den Allgemeinen Geschäftsbedingungen, den Hinweisen zum Datenschutz und nutzungsbasierter Online-Werbung.