
MS Immobilien und Verwaltungs GmbH
Frau Sylvia Schuster
016 ···
Nr. anzeigenPreise & Kosten
Kaution
730
Warum sehe ich diese Anzeige? – Du siehst diese Anzeige basierend auf Ihrer Navigation auf unserer Website und den Suchkriterien, die du verwendet hast.
Lage
Das Haus befindet sich in der historischen Stadt Leisnig, deren Anblick vorallem durch die Burg Mildenstein geprägt ist und deren Innenstadt einen besonderen Charme durch den herrlichen, historischen Altstadtkern besitzt. Das Objekt befindet sich in einer Seitenstraße des Johannistals und bietet ein ruhiges, angenehmes...
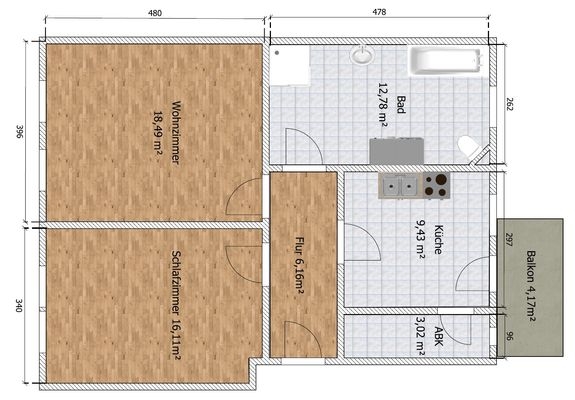
Die Wohnung
Wohnungslage
Erdgeschoss
Bezug
sofort
Derzeitige Nutzung
frei
Wohnanlage
Energie & Heizung
Warum sehe ich diese Anzeige? – Du siehst diese Anzeige basierend auf Ihrer Navigation auf unserer Website und den Suchkriterien, die du verwendet hast.
Weitere Energiedaten
Energieträger
Gas
Heizungsart
Zentralheizung
Details
Objektbeschreibung
Besichtigungstermine ausschließlich nach telefonischer Vereinbarung unter 0162-6597303.
Die großzügige, helle 2-Raum-Wohnung befindet sich im Erdgeschoss eines Mehrfamilienhauses und ist sehr vorteilhaft geschnitten. Die Wohnung wurde vollständig gemalert und die Wohnräume sowie der Flur mit neuen Bodenbelag...
Weitere Informationen
Besichtigungstermine
Besichtigungstermine ausschließlich nach telefonischer Vereinbarung unter 0162-6597303.
Stichworte
Serviceleistungen: Hausmeister
Dokumente
Anbieter der Immobilie
MS Immobilien und Verwaltungs GmbH
Hauptstraße 119, 04736 Waldheim
Online-ID: 2lxc85j
Referenznummer: 409-101
Finde Angebote wie dieses
Hier geht es zu unserem Impressum, den Allgemeinen Geschäftsbedingungen, den Hinweisen zum Datenschutz und nutzungsbasierter Online-Werbung.