
ohne-makler.net - Immobilien selbst vermarkten
Privat von Carmen Marquardsen
Kontaktiere den Anbieter schriftlich, es ist keine Telefonnummer hinterlegt.
Preise & Kosten
Provision für Käufer
provisionsfrei
Lage
Isen liegt im Landkreis Erding, nahe München, und bietet eine hervorragende Infrastruktur:
.Einkaufsmöglichkeiten, Schulen, Ärzte, Apotheken
.Grundschule in fußläufiger Nähe, Gymnasium in Dorfen
.Autobahnanschluss A94 in wenigen Minuten erreichbar
.München Zentrum ca. 40 Min. Fahrzeit
.Bushaltestellen fußläufig...
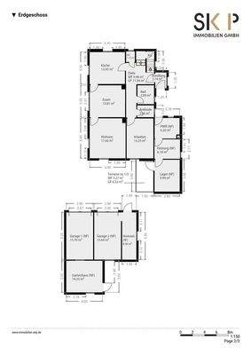
Das Haus
Kategorie
Einfamilienhaus
Baujahr
1938
Bezug
sofort
Energie & Heizung
Warum sehe ich diese Anzeige? – Du siehst diese Anzeige basierend auf Ihrer Navigation auf unserer Website und den Suchkriterien, die du verwendet hast.
Energieausweistyp
Bedarfsausweis
Gebäudetyp
Wohngebäude
Effizienzklasse
G
Endenergiebedarf
231,00 kWh/(m²·a)
Weitere Energiedaten
Energieträger
Gas
Heizungsart
offener Kamin, Zentralheizung
Details
Objektbeschreibung
Sie suchen ein Haus, das Sie nach Ihren eigenen Vorstellungen gestalten können? Dieses traditionelle Einfamilienhaus aus dem Jahr 1938 bietet Ihnen eine solide Grundlage. Das Gebäude wurde in Massivbauweise errichtet, 1968 erweitert und kann - wenn gewünscht - sofort bezogen und bewohnt werden. Seit 2000 wurden einzelne...
Ausstattung
Balkon, Terrasse, Garten, Keller, Einbauküche, Kamin, Laminat, Fliesen
Bemerkungen:
.Einbauküche inkl. Geräte (Spülmaschine, Kühlschrank, Herd)
.Schwedenofen
.Glasfaseranbindung
.Hochwertiges Laminat & Fliesen
.Balkon & Freisitz
.Doppelgarage & Werkstatt
.Zwei Schuppen
Preisinformation
2 Garagenstellplätze
Weitere Informationen
Sonstiges
Heizungsart: Zentralheizung
Energieträger: Gas
Makleranfragen nicht erwünscht. Nach § 7 UWG sind unaufgeforderte Kontaktaufnahmen durch Makler ohne ausdrückliche Einwilligung des Empfängers verboten!
ohne-makler (OM) ist weder Anbieter noch Vermittler der Immobilie. OM betreibt eine Plattform...
Dokumente
Anbieter der Immobilie
ohne-makler.net - Immobilien selbst vermarkten
Humboldtstr. 25 A, 21509 Glinde
Privat von Carmen Marquardsen
Dein Ansprechpartner
Kontaktiere den Anbieter schriftlich, es ist keine Telefonnummer hinterlegt.
Online-ID: 2lxd65l
Referenznummer: 393140
Finde Angebote wie dieses
Hier geht es zu unserem Impressum, den Allgemeinen Geschäftsbedingungen, den Hinweisen zum Datenschutz und nutzungsbasierter Online-Werbung.