
Tröndle Immobilienverwaltung GmbH
Frau Manuela Koch
062 ···
Nr. anzeigenPreise & Kosten
Provision für Käufer
provisionsfrei
Lage
Das Bauvorhaben liegt im Neubaugebiet "Lützelsachsen-Ebene“ zwischen dem Lützelsachsener
Dorfkern und der Bahnlinie Lützelsachsen. Mit ca. 5.700 Einwohnern ist Lützelsachsen der größte
Stadtteil Weinheims und hat sich aufgrund seiner schönen Lage an der Badischen Bergstraße zu
einem sehr begehrten Wohnort entwickelt...
Das Haus
Kategorie
Doppelhaushälfte
Baujahr
2024
Bezug
01.05.2026
Energie & Heizung
Warum sehe ich diese Anzeige? – Du siehst diese Anzeige basierend auf Ihrer Navigation auf unserer Website und den Suchkriterien, die du verwendet hast.
Energieausweistyp
Bedarfsausweis
Gebäudetyp
Wohngebäude
Baujahr laut Energieausweis
2024
Wesentliche Energieträger
Luft-Wasser-Wärmepumpe
Effizienzklasse
A
Endenergiebedarf
27,90 kWh/(m²·a)
Weitere Energiedaten
Haustyp
KfW 55
Energieträger
Elektro
Heizungsart
Fußbodenheizung, Luft-/Wasser-Wärmepumpe, Zentralheizung
Details
Objektbeschreibung
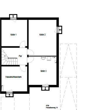
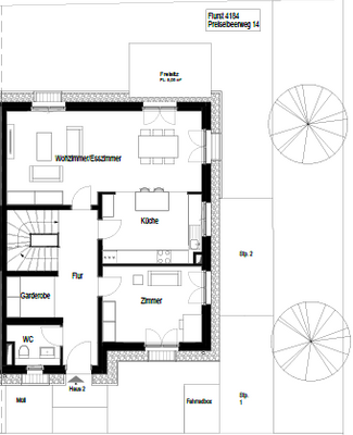
Diese moderne Doppelhaushälfte in attraktiver Feldrandlage von Weinheim-Lützelsachsen bietet Ihnen und Ihrer Familie ein durchdachtes Wohnkonzept, kombiniert mit einer modernen Architektur, energieeffizienter Bauweise und einem liebevoll gestaltbaren Garten. Mit einer Grundstücksfläche von ca. 268 m² und einer Wohnfläche von...
Ausstattung
- Massive Bauweise mit erstklassigem
Wärmedämmverbundsystem
- Umweltfreundliche Fernwärme
- Photovoltaik-Anlage
- Hauseingangstüren mit Leichtmetallkonstruktion und
Isolierverglasung
- Türsprechanlage
- Laminatboden mit PEFC-Nachhaltigkeitssiegel
- Moderne Bodenfliesen
- Individuell...
Weitere Informationen
Um Ihnen den Charakter dieser Doppelhaushälften näher bringen zu können, empfehlen wir eine Besichtigung vor Ort.
Gerne stehen wir Ihnen in der Zeit von 8-12 Uhr und 13-16 Uhr zur Verfügung.
Besichtigung nach Terminvereinbarung.
Anbieter der Immobilie
Tröndle Immobilienverwaltung GmbH
Mannheimer Str. 54, 68535 Edingen-Neckarhausen
Online-ID: 2lxdt5b
Referenznummer: 236-14
Finde Angebote wie dieses
Hier geht es zu unserem Impressum, den Allgemeinen Geschäftsbedingungen, den Hinweisen zum Datenschutz und nutzungsbasierter Online-Werbung.