

Hoppe Immobilien
Herr Carsten Hoppe
+49 ···
Nr. anzeigenPreise & Kosten
Provision für Käufer
3,57% inkl. 19% Mwst. Weitere Informationen siehe Provisionshinweis.
Lage
Die Lage dieser Immobilie in Möllenhagen bietet eine ideale Mischung aus Ruhe und hervorragender Anbindung an wichtige Verkehrsknotenpunkte. Nur einen kurzen Fußweg von 3 Minuten entfernt finden Sie den öffentlichen Personennahverkehr (ÖPNV), der Sie bequem zu verschiedenen Zielen bringt.
Das Haus
Kategorie
Bungalow
Baujahr
2023
Bezug
sofort
Energie & Heizung
Warum sehe ich diese Anzeige? – Du siehst diese Anzeige basierend auf Ihrer Navigation auf unserer Website und den Suchkriterien, die du verwendet hast.
Energieausweistyp
Bedarfsausweis
Gebäudetyp
Wohngebäude
Wesentliche Energieträger
Strom
Gültigkeit
17.09.2025 bis 16.09.2035
Effizienzklasse
A
Endenergiebedarf
44,42 kWh/(m²·a)
Weitere Energiedaten
Energieträger
Elektro
Details
Objektbeschreibung
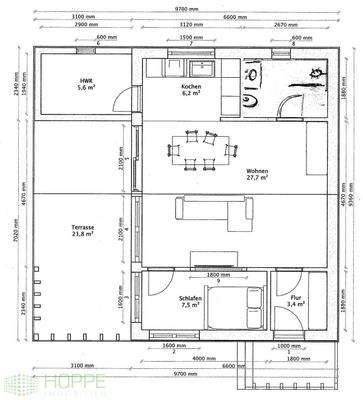
Entdecken Sie Ihren Traumbungalow in Möllenhagen! Dieses neuwertige, charmante Haus in ansprechender Holzbauweise bietet Ihnen alles, was Sie für ein komfortables Zuhause benötigen. Mit einer Wohnfläche von 55,4 m² und einem großzügigen Grundstück von 1.000 m² ist dieses Objekt perfekt für Ruhesuchende und...
Ausstattung
Der Bungalow ist sehr hochwertig ausgestattet und bietet modernen Wohnkomfort bis ins Detail:
Küche: Einbauküche mit Induktionskochfeld, integriertem Dunstabzug, Backofen, Mikrowelle, Geschirrspüler sowie Kühl- und Gefrierkombination - alles Markenqualität.
Badezimmer: Modern gefliestes Tageslichtbad mit WC...
Preisinformation
1 Stellplatz
Weitere Informationen
Provisionshinweis
3,57% inkl. 19% Mwst.
Für den Fall des wirksamen Abschlusses eines Kaufvertrages über das oben genannte Objekt zahlt der Kaufinteressent an die Maklerfirma Hoppe Immobilien eine Maklerprovision in Höhe von 3,57 % des Kaufpreises inklusive der gesetzlichen Mehrwertsteuer.
Es gelten die...
Anbieter der Immobilie

Online-ID: 2lxdv5g
Referenznummer: 3352
Finde Angebote wie dieses
Hier geht es zu unserem Impressum, den Allgemeinen Geschäftsbedingungen, den Hinweisen zum Datenschutz und nutzungsbasierter Online-Werbung.