
Decus Immobilien GmbH
Frau Katharina Hammerl
+43 ···
Nr. anzeigenPreise & Kosten
Provision für Käufer
3% des Kaufpreises zzgl. 20% USt.
Lage
Belgier Kaserne
Das Renditeobjekt
Baujahr
1993
Energie & Heizung
Warum sehe ich diese Anzeige? – Du siehst diese Anzeige basierend auf Ihrer Navigation auf unserer Website und den Suchkriterien, die du verwendet hast.
Heizwärmebedarf (HWB)
108,00 kWh/(m²·a)
Gesamtenergieeffizienz (fGEE)
1,74
Weitere Energiedaten
Energieträger
Fernwärme
Details
Objektbeschreibung
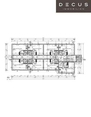
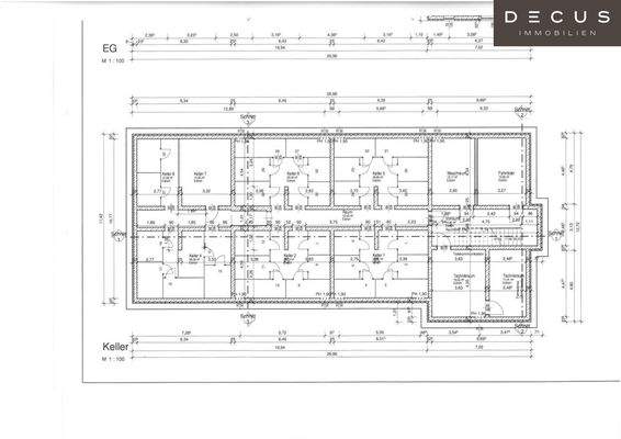
Zum Verkauf gelangt ein sehr gut vermietetes Apartmenthaus in Bezirk Wetzelsdorf!
Die Wohnnutzfläche von ca. 855 m² erstreckt sich über drei Ebenen sowie das Erdgeschoss. Das Haus umfasst insgesamt 32 Tops. In jeder Etage befinden sich 8 Wohneinheiten je ca.27 m² groß. Jeder Wohnung ist ein Kellerabteil...
Preisinformation
21 Stellplätze
Weitere Informationen
Stichworte
Nutzfläche: 855,00 m², Bundesland: Steiermark, 3 Etagen
Anbieter der Immobilie
Decus Immobilien GmbH
Kärtner Straße 39/Annagasse 1, 1010 WIEN
Online-ID: 2lxma5f
Referenznummer: OBGC20241215090918717bf5dd38680
Finde Angebote wie dieses
Günstige Immobilienfinanzierung einfach online berechnen
Persönliches Angebot berechnenWarum sehe ich diese Werbung? – Du siehst diese Werbung basierend auf Deiner Navigation auf unserer Website und der von Dir verwendeten Suchkriterien.
Diese Werbung wird bezahlt von durchblicker
Werbung melden
Hier geht es zu unserem Impressum, den Allgemeinen Geschäftsbedingungen, den Hinweisen zum Datenschutz und nutzungsbasierter Online-Werbung.