

Case & Castelli
Frau Judith Lanyi
004 ···
Nr. anzeigenPreise & Kosten
Provision für Käufer
4%
Lage
Die Villa befindet sich auf einem exklusiven Grundstück von ca. 400 Metern mit einem "Garagenanbau von 11 qm"
Das Haus
Energie & Heizung
Warum sehe ich diese Anzeige? – Du siehst diese Anzeige basierend auf Ihrer Navigation auf unserer Website und den Suchkriterien, die du verwendet hast.
Weitere Energiedaten
Energieträger
Gas
Details
Objektbeschreibung
Objektbeschreibung
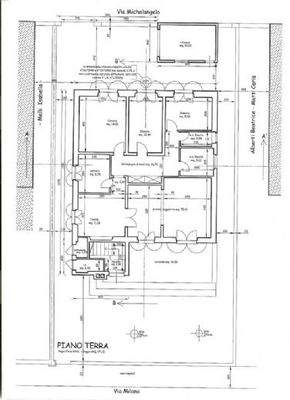
Im historischen Zentrum, innerhalb der Z.T.L. verkaufen wir diese interessante historische Villa von etwa 265 qm Land, laut Grundbuch in zwei Einheiten unterteilt. Die Villa soll teilweise restauriert werden.
Raumaufteilung
Auf der ersten Etage, im Erdgeschoss befindet sich eine Eingangshalle...
Anbieter der Immobilie

Case & Castelli
Martinweg 8, 94032 Bad Füssing

Online-ID: 2lxmk46
Finde Angebote wie dieses
Hier geht es zu unserem Impressum, den Allgemeinen Geschäftsbedingungen, den Hinweisen zum Datenschutz und nutzungsbasierter Online-Werbung.