Riwog Real Estate Management GmbH

Herr Learco Andrea Tews, MSc (WU)

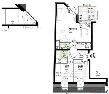
DG-ERSTBEZUG | 3-Zimmer mit hofseitiger Terrasse | Ost/West | Fernwärme | Fassadenbegrünung | TG-Stellplatz optional | Nachhaltiges Wohnbauprojekt

€ 690.100
Kaufpreis
74,78 m²
Wohnfläche ca.
3
Zimmer
Finanzierung berechnen mit durchblicker

Der Anbieter dieses Objekts hat gegenüber der AVIV Germany GmbH als Betreiber dieses Online-Marktplatzes erklärt, nicht als Unternehmer im Sinne des § 1 KSchG zu handeln. Die im Verbraucherschutzrecht der Union verankerten Verbraucherrechte (insbesondere Informationspflichten und Rücktritts- bzw. Widerrufsrechte) finden auf den Vertrag zwischen dem Anbieter des Objekts und Ihnen (dem Interessenten) keine Anwendung.

Gewerblicher Anbieter

Der Anbieter dieses Objekts hat gegenüber der AVIV Germany GmbH als Betreiber dieses Online-Marktplatzes erklärt, als Unternehmer im Sinne des § 1 KSchG zu handeln.

AdresseVeronikagasse 31
1170 Wien 
(Hernals)
Auf Karte ansehen

Preise & Kosten

Kaufpreis € 690.100

Provision für Käufer

24.843,60 € inkl. 20% USt.

Lage

Yppenmarkt | Brunnenmarkt | U6 (Alser Straße)

Die Wohnung

Wohnungslage

4. Geschoss (Dachgeschoss)

Bezug

geplant ab ca. März/2026

  • Bad mit Wanne
  • Balkon, Terrasse
  • offene Küche
  • barrierefrei
  • Böden: Estrich, Fliesenboden, Parkett
  • Zustand: Erstbezug
  • voll klimatisiert
  • Weitere Räume: Abstellraum
  • Anschlüsse: Kabelanschluss

Wohnanlage

  • Baujahr: 2026
  • Zustand: Neubau
  • Personenaufzug

Energie & Heizung

Heizwärmebedarf (HWB)

B

33,20 kWh/(m²·a)

Gesamtenergieeffizienz (fGEE)

A

0,72

Weitere Energiedaten

Energieträger

Fernwärme

Heizungsart

Fußbodenheizung

Details

Objektbeschreibung

_JETZT BAUSTELLE & MUSTERWOHNUNG BESICHTIGEN_
 

Im lebendigen 17. Bezirk entsteht ein Wohnensemble, das Lebensqualität neu definiert. In der Ottakringer Straße 26 und Veronikagasse 31 warten 60 moderne Eigentumswohnungen - verteilt auf zwei Wohnhäuser und ein charmantes Townhouse - auf alle, die ein Zuhause...

Mehr anzeigen

Weitere Informationen

Stichworte
Tiefgarage vorhanden, West-Balkon/Terrasse, Fahrradraum, Rolladen, Anzahl der Badezimmer: 1, Anzahl der separaten WCs: 1, Anzahl Balkone: 1, Anzahl Terrassen: 1, Balkon-Terrassen-Fläche: 7,34 m², Kellerfläche: 1,49 m², Bundesland: Wien, 6 Etagen, Wohnungsnr.: 18

Anbieter der Immobilie

Partner

Riwog Real Estate Management GmbH

im Durchschnitt  5,00  Sterne
(bei 2 Bewertungen)

Börsegasse 12, 1010 WIEN

Geschäftszeiten
user

Herr Learco Andrea Tews, MSc (WU)

Dein Ansprechpartner

Anbieter-Profil Anbieter-Impressum

Online-ID: 2lxna5b

Referenznummer: OBGC20250901143208226f7732e14ba

Finde Angebote wie dieses

imageimageimage

Günstige Immobilienfinanzierung einfach online berechnen

Persönliches Angebot berechnen

Hier geht es zu unserem Impressum, den Allgemeinen Geschäftsbedingungen, den Hinweisen zum Datenschutz und nutzungsbasierter Online-Werbung.