
Engel & Völkers
Herr Richard Jennewein
004 ···
Nr. anzeigenPreise & Kosten
Provision für Mieter
3 Monatsnettokaltmiete zzgl. MwSt., also 3,57 Monatsnettokaltmieten
Warum sehe ich diese Anzeige? – Du siehst diese Anzeige basierend auf Ihrer Navigation auf unserer Website und den Suchkriterien, die du verwendet hast.
Lage
Das hier angebotene Objekt befindet sich im Industriegebiet der Stadt Markdorf ca. 1,5 Kilometer vom Ortskern sowie dem
Bahnhof entfernt. Hier befinden sich neben Handwerksbetrieben eine Vielzahl von kleinen und großen mittelständische
Unternehmen. Die Infrastruktur vor Ort bietet sämtliche für den Tagesbedarf...
Büro-/Praxisfläche
Kategorie
Bürofläche
Baujahr
1994
Energie & Heizung
Warum sehe ich diese Anzeige? – Du siehst diese Anzeige basierend auf Ihrer Navigation auf unserer Website und den Suchkriterien, die du verwendet hast.
Weitere Energiedaten
Energieträger
Gas
Details
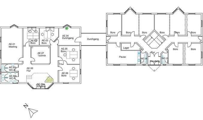
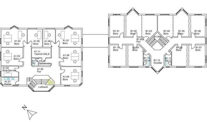
Objektbeschreibung
Die beiden Bürogebäude wurden 1994 gebaut und verfügen jeweils über zwei Stockwerke. Das hintere Gebäude besitzt darüber hinaus ein belichtetes Hanggeschoss. Beide Gebäude sind durch eine Verbindungstür miteinander verbunden und können gemeinsam genutzt werden. Auch verschiedene Aufteilungen, bspw. nach Gebäuden oder auch...
Preisinformation
46 Stellplätze
Weitere Informationen
Stichworte
Wohnfläche: 1.212,00 m², Gesamtfläche: 1.212,00 m², Grundstücksfläche: 4.629,00 m², Bundesland: Baden-Württemberg
Anbieter der Immobilie
Online-ID: 2lxqa5k
Referenznummer: UE-ZV257
Finde Angebote wie dieses
Hier geht es zu unserem Impressum, den Allgemeinen Geschäftsbedingungen, den Hinweisen zum Datenschutz und nutzungsbasierter Online-Werbung.