Be Part of Berlin Vermittlungs GmbH

Herr Christopher Morys

BEZUGSFREIE GEWERBEFLÄCHE MIT EXZELLCENTER ANBINDUNG UND KUNDENNÄHE IN WEDDING | PROVISIONSFREI!

€ 6.163,64
Preis/m²
155,59 m²
Bürofläche ca.
k.A.
Teilbare Fläche
k.A.
Zimmer

Der Anbieter dieses Objekts hat gegenüber der AVIV Germany GmbH als Betreiber dieses Online-Marktplatzes erklärt, nicht als Unternehmer im Sinne des § 1 KSchG zu handeln. Die im Verbraucherschutzrecht der Union verankerten Verbraucherrechte (insbesondere Informationspflichten und Rücktritts- bzw. Widerrufsrechte) finden auf den Vertrag zwischen dem Anbieter des Objekts und Ihnen (dem Interessenten) keine Anwendung.

Provisionsfrei
Gewerblicher Anbieter

Der Anbieter dieses Objekts hat gegenüber der AVIV Germany GmbH als Betreiber dieses Online-Marktplatzes erklärt, als Unternehmer im Sinne des § 1 KSchG zu handeln.

AdresseMüllerstraße 132
13349 Berlin 
(Wedding)
Auf Karte ansehen

Preise & Kosten

Preis/m² € 6.163,64 Kaufpreis € 959.000 Hausgeld € 1.465

Provision für Käufer

provisionsfrei

Lage

IHRE NEUE GESCHÄFTSADRESSE!

Die Müllerstraße 132 befindet sich im lebhaften Stadtteil Wedding, der sowohl für seine historische Arbeiterkultur als auch für seine zunehmende Anziehungskraft auf kreative und junge Bevölkerungsgruppen bekannt ist.

Diese Lage bietet zahlreiche Vorteile für ein...

Mehr anzeigen

Büro-/Praxisfläche

Kategorie

Bürofläche

Baujahr

1900

Bezug

frei

Geschoss

Erdgeschoss

  • gepflegt

Energie & Heizung

Wärme

0 100 200 300 400 500 600 700 800 900 1000 +

Energieausweistyp

Bedarfsausweis

Gebäudetyp

Nicht-Wohngebäude

Baujahr laut Energieausweis

1900

Gültigkeit

bis 27.02.2030

Endenergiebedarf (Wärme)

139,20 kWh/(m²·a)

Weitere Energiedaten

Energieträger

Gas

Heizungsart

Zentralheizung

Details

Objektbeschreibung

ATTRAKTIVER ALTBAU MITTEN IM WEDDING!

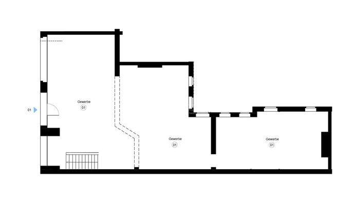
Der 5-geschossige Altbau "Müllerstr. 132" stammt aus dem Jahre 1900 und verfügt über rund 38 Wohn- und 2 Gewerbeeinheiten. Es besteht aus einem Vorderhaus, einem Seitenflügel und einem Hinterhaus.

Fahrradabstellmöglichkeiten sind im Innenhof gegeben.

Ausstattung

RENOVIERUNGSBEDÜRFTIG | 2 EBENEN!

Diese Gewerbeeinheit befindet sich in einem renovierungsbedürftigen Zustand. Sie zeichnet sich durch folgende Ausstattungsmerkmale aus:

* Gewerbefläche mit Potential
* 2 Ebenen (EG + UG mit ca. 136,76 m²)
* Renovierungsbedürftig
* Attraktive Lage in Wedding

Weitere Informationen

Sonstiges
Wir freuen uns von Ihnen zu hören und stehen für weitere Fragen und einen Besichtigungstermin selbstverständlich gern zur Verfügung!

Provisionsfrei für den Käufer!

Das monatliche Hausgeld liegt bei ca. 1.465,00 €.

ALLE ANGABEN OHNE GEWÄHR!

Stichworte
Nutzfläche: 292,35 m²...

Mehr anzeigen

Anbieter der Immobilie

Partner

Be Part of Berlin Vermittlungs GmbH

im Durchschnitt  4,90  Sterne
(bei 14 Bewertungen)

Kurfürstendamm 177, 10707 Berlin

Geschäftszeiten
user

Herr Christopher Morys

Dein Ansprechpartner

Anbieter-Website Anbieter-Profil Anbieter-Impressum

Online-ID: 2lxta58

Referenznummer: ABA022_00001.B.4

Finde Angebote wie dieses

imageimageimage

Hier geht es zu unserem Impressum, den Allgemeinen Geschäftsbedingungen, den Hinweisen zum Datenschutz und nutzungsbasierter Online-Werbung.