
FALC Immobilien Köln & Pulheim
Herr Günter Thal
+49 ···
Nr. anzeigenPreise & Kosten
Provision für Käufer
3,57% incl. 19% MwSt vom not. Kaufpreis
Lage
Das Mehrfamilienhaus befindet sich in zentraler und dennoch ruhiger Lage von Frechen.
Die Umgebung ist geprägt von gepflegten Wohnhäusern, einer angenehmen Nachbarschaft und einer sehr guten Infrastruktur, die sowohl für Familien als auch für Berufspendler ideale Voraussetzungen bietet.
Frechen liegt am westlichen...
Das Haus
Kategorie
Mehrfamilienhaus
Baujahr
1950
Bezug
nach Vereinbarung
Energie & Heizung
Warum sehe ich diese Anzeige? – Du siehst diese Anzeige basierend auf Ihrer Navigation auf unserer Website und den Suchkriterien, die du verwendet hast.
Energieausweistyp
Verbrauchsausweis
Gebäudetyp
Wohngebäude
Wesentliche Energieträger
Gas
Gültigkeit
16.07.2025 bis 16.07.2035
Effizienzklasse
E
Endenergieverbrauch
134,00 kWh/(m²·a)
Weitere Energiedaten
Energieträger
Gas
Details
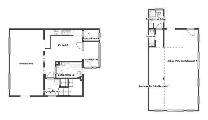
Objektbeschreibung
Mehrfamilien- und/oder Mehrgenerationenhaus in zentraler Lage von Frechen!
Dieses großzügige Mehrfamilienhaus aus dem Baujahr 1950 , mit einer Grundstücksgröße von ca. 600 m², in gefragter Wohnlage von Frechen bietet mit ca. 220?m² Wohnfläche und insgesamt drei Etagen vielfältige Nutzungsmöglichkeiten - ob als...
Ausstattung
Ausstattung in der Übersicht
- Baujahr: 1950
- Grundstück ca. 600m²
- Wohnfläche: ca. 220?m²
- 3 Etagen
- 4 Schlafzimmer
- 3 Badezimmer
- 1 Wannenbad
- 2 Duschbäder
- Einbauküchen
- Bodenbeläge: Fliesen und Laminat
- Abstellraum
- Gasheizung Baujahr 1992
- Dach 2010 neu...
Preisinformation
4 Stellplätze
Weitere Informationen
Sonstiges
Geben Sie bei der Kontaktaufnahme bitte immer die vollständige Adresse und Rufnummer an - vielen Dank!
Werte gemäß Gebäudeenergiegesetz (vormals: EnEV):
Energieausweistyp: Verbrauchsausweis
gültig bis: 16.07.2035
Baujahr des Hauses: 1950
Baujahr der Heizung: 1992
...
Anbieter der Immobilie
Online-ID: 2lxty5x
Referenznummer: FALC-GT-71469
Finde Angebote wie dieses
Hier geht es zu unserem Impressum, den Allgemeinen Geschäftsbedingungen, den Hinweisen zum Datenschutz und nutzungsbasierter Online-Werbung.