
vienna immobilien
Frau Gabriele Einfalt
004 ···
Nr. anzeigenPreise & Kosten
zzgl. Betriebskosten
Kaution
21.960,00
Provision für Mieter
3 BMM inkl. MwSt.
Warum sehe ich diese Anzeige? – Du siehst diese Anzeige basierend auf Ihrer Navigation auf unserer Website und den Suchkriterien, die du verwendet hast.
Lage
U1 und U3 Stephansplatz ca. 5 Gehminuten
Autobuslinie 3A ca. 2 Gehminuten
Die Ladenfläche
Baujahr
1786
Bezug
sofort
Erdgeschoss
Energie & Heizung
Warum sehe ich diese Anzeige? – Du siehst diese Anzeige basierend auf Ihrer Navigation auf unserer Website und den Suchkriterien, die du verwendet hast.
Heizwärmebedarf (HWB)
215,00 kWh/(m²·a)
Gesamtenergieeffizienz (fGEE)
2,08
Weitere Energiedaten
Energieträger
Gas
Details
Objektbeschreibung
Dieses frühere Bäckerei kann optimal als Bäckerei/Patisserie oder Coffeeshop angemietet werden. Das schöne Altbauflair mit Gewölbedecken und kunstvollem Eingangstor punktet auch durch eine Take-Away-Theke und der angeschlossen Backstube mit Kühlräumen. Die Vermietung ist ablösefrei (ohne Einrichtungen lt. Fotos) sowie...
Ausstattung
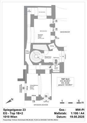
Gesamtfläche ca. 121 m²
Aufteilung:
EG gesamt 95 m²
- Verkaufsraum vorne mit 34 m² - zusätzlicher Takeaway-Verkauf vorhanden
- Flur mit ca. 15 m²
- Backstube sowie 2 Kühlräume mit ca. 46 m²
KG mit Technikraum ca. 26 m²
Ausstattung:
- Betriebsanlagengenehmigung vorhanden
-...
Preisinformation
Nettokaltmiete: 5.750,00 EUR
Weitere Informationen
Sonstiges
Die vormalige Bäckerei liegt in der Spiegelgasse visavis vom Eingang zum Dorotheum. Die EG-Fläche mit gesamt ca. 95 m² besteht aus einem Verkaufsraum mit ca. 34 m² und einer direkt verbunden Backstube/Vorbereitungsküche mit Kühlräumen und zusätzlichem hofseitigem Zugang. Eine Betriebsanlagengenehmigung ist...
Anbieter der Immobilie
vienna immobilien
Walfischgasse 6, 1010 WIEN
Online-ID: 2lxuc5k
Referenznummer: 15813986
Finde Angebote wie dieses
Hier geht es zu unserem Impressum, den Allgemeinen Geschäftsbedingungen, den Hinweisen zum Datenschutz und nutzungsbasierter Online-Werbung.