
E + V Hamburg Immobilien GmbH
Team Engel & Völkers Hamburg Alster
+49 ···
Nr. anzeigenPreise & Kosten
Provision für Käufer
Die vom Käufer und Verkäufer an uns zu zahlende Courtage in Höhe von jeweils 3,57% inkl. Weitere Informationen siehe Provisionshinweis.
Lage
Die Immobilie befindet sich im beliebten Hamburger Stadtteil Alsterdorf. Sowohl der Stadtpark, mit seinen diversen Freizeitmöglichkeiten, als auch die Hamburger Außenalster sind in wenigen Minuten zu erreichen. Das Umfeld ist geprägt von einer gewachsenen, guten Infrastruktur. Die zentrale Lage zwischen Innenstadt und...
Das Haus
Kategorie
Villa
Baujahr
1913
Energie & Heizung
Warum sehe ich diese Anzeige? – Du siehst diese Anzeige basierend auf Ihrer Navigation auf unserer Website und den Suchkriterien, die du verwendet hast.
Energieausweistyp
Bedarfsausweis
Gebäudetyp
Wohngebäude
Baujahr laut Energieausweis
1913
Gültigkeit
seit 10.10.2024
Effizienzklasse
E
Endenergiebedarf
130,40 kWh/(m²·a)
Weitere Energiedaten
Energieträger
Gas
Details
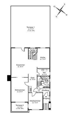
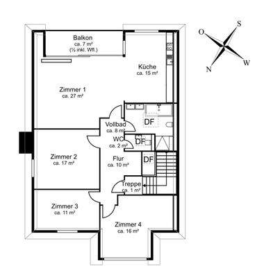
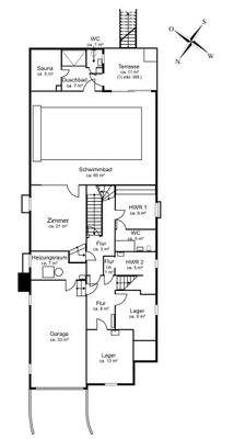
Objektbeschreibung
- Gefragte Lage im beliebten Hamburg-Alsterdorf, fußläufig zum Alsterlauf
- Freistehende Stadtvilla mit sehr guten Lichtverhältnissen und großem Grundstück
- Sehr schöne und gut erhaltene Stilelemente
- Komplettsanierung aller Etagen inkl. neuer Elektrik, Wasserleitungen & Heizkörper
- Offene und moderne...
Weitere Informationen
Provisionshinweis
Die vom Käufer und Verkäufer an uns zu zahlende Courtage in Höhe von jeweils 3,57% inkl. 19% Umsatzsteuer auf den Kaufpreis ist mit dem Zustandekommen des Kaufvertrages (notarieller Vertragsabschluss) verdient und fällig. Käufer und Verkäufer schulden die Courtage aufgrund separater Vereinbarungen in...
Anbieter der Immobilie
E + V Hamburg Immobilien GmbH
Stadthausbrücke 5, 20355 Hamburg
Online-ID: 2lxvd58
Referenznummer: I-02PGHJ-W-02PGHJ
Finde Angebote wie dieses
Hier geht es zu unserem Impressum, den Allgemeinen Geschäftsbedingungen, den Hinweisen zum Datenschutz und nutzungsbasierter Online-Werbung.