
Purnhagen-Immobilien
Herr Uwe Purnhagen
Kontaktiere den Anbieter schriftlich, es ist keine Telefonnummer hinterlegt.
Preise & Kosten
Kaution
2.400,00
Provision für Mieter
2,38 Monatskaltmieten, inkl. gesetzlicher MwSt., zahlbar durch den Mieter.
Warum sehe ich diese Anzeige? – Du siehst diese Anzeige basierend auf Ihrer Navigation auf unserer Website und den Suchkriterien, die du verwendet hast.
Lage
Die angebotene Ladenfläche befindet sich in sehr guter Lauflage, direkt in der unteren Vegesacker Fußgängerzone. Alle Geschäfte des täglichen Bedarfs, ein Bankhaus, eine Apotheke, Ärzte sowie verschiedene Cafés in der unmittelbaren Umgebung sorgen für eine hohe Kundenfrequenz.
Sowohl der Bahnhof Bremen-Vegesack, als auch...
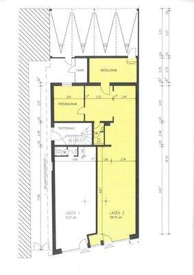
Die Ladenfläche
Kategorie
Laden
Baujahr
1900
Bezug
nach Vereinbarung
Energie & Heizung
Warum sehe ich diese Anzeige? – Du siehst diese Anzeige basierend auf Ihrer Navigation auf unserer Website und den Suchkriterien, die du verwendet hast.
Weitere Energiedaten
Energieträger
Gas
Heizungsart
Zentralheizung
Details
Objektbeschreibung
Die Gesamtnutzfläche dieser Gewerbeeinheit beträgt ca. 110 m² und teilt sich auf in einen ebenerdigen Ladenbereich sowie einen kleinen Sozialraum mit separatem WC (insgesamt ca. 51 m²) und einem Abstellraum. Davor sind zur Zeit zwei kleine Räume mit Leichtbauwänden abgeteilt, die als Umkleidekabinen genutzt werden können. Auf...
Preisinformation
Nettokaltmiete: 1.200,00 EUR
Weitere Informationen
Stichworte
Gesamtfläche: 110,00 m², Ladenfläche: 110,00 m²
Anbieter der Immobilie
Purnhagen-Immobilien
Am Rabenfeld 4, 28757 Bremen
Herr Uwe Purnhagen
Dein Ansprechpartner
Kontaktiere den Anbieter schriftlich, es ist keine Telefonnummer hinterlegt.
Online-ID: 2ly3e56
Referenznummer: 318008
Finde Angebote wie dieses
Hier geht es zu unserem Impressum, den Allgemeinen Geschäftsbedingungen, den Hinweisen zum Datenschutz und nutzungsbasierter Online-Werbung.