
DieVorsorge
Herr Claas Gerdes
004 ···
Nr. anzeigenPreise & Kosten
Provision für Käufer
5 %
Lage
Neuenkirchen liegt verkehrsgünstig im Städtedreieck Hannover, Bremen und Osnabrück.
Der Ort Neuenkirchen hat eine Bank, einen kleinen Einkaufsladen, einen Bäcker, diverse Handwerksbetriebe sowie eine gute, stündliche Busanbindung nach Sulingen und Bassum.
Die ca. 10 km entfernten Mittelstädte Sulingen, Bassum...
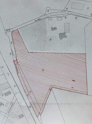
Das Grundstück
Kategorie
Gewerbe-Grundstück
Details
Objektbeschreibung
Bei diesem Objekt handelt es sich um eine Gewerbefläche mit einer Größe von ca. 20.000 m² in verkehrsgünstiger Lage in Neuenkirchen. Sie liegt direkt an der B 61 zwischen Sulingen und Bassum.
- ca. 20.000 m²
- Preis auf Anfrage
Gerne erfahren Sie weitere Details im persönlichen Gespräch mit uns! Senden Sie...
Weitere Informationen
Sonstiges
Übernahmetermin: nach Absprache
Vereinbaren Sie gerne einen unverbindlichen und kostenfreien Besichtigungstermin mit uns.
Ihr zuständiger Ansprechpartner ist Herr Claas Gerdes:
Tel.: 04271 - 9275177 * Fax: 04271 - 9275178
Bitte geben Sie uns bei Kontaktaufnahme per E-Mail Ihre Rufnummer mit an...
Anbieter der Immobilie

DieVorsorge
Lange Str. 2a, 27232 Sulingen
Online-ID: 2ly4d5v
Referenznummer: DV504
Finde Angebote wie dieses
Hier geht es zu unserem Impressum, den Allgemeinen Geschäftsbedingungen, den Hinweisen zum Datenschutz und nutzungsbasierter Online-Werbung.