

IREA Intelligent Real Estate Agency GmbH
Herr Denis Declair
+49 ···
Nr. anzeigenPreise & Kosten
Provision für Käufer
Keine Käuferprovision
Lage
Die Liegenschaft besticht durch ihre exzellente Lage im Zentrum von Bonn. In der unmittelbaren Nähe befinden sich zudem die Beethovenhalle sowie das Rheinufer.
Alle Geschäfte des täglichen Bedarfs, Restaurants, Ärzte und Apotheken sowie die Bonner Stadtmitte und die Altstadt sind fußläufig zu...
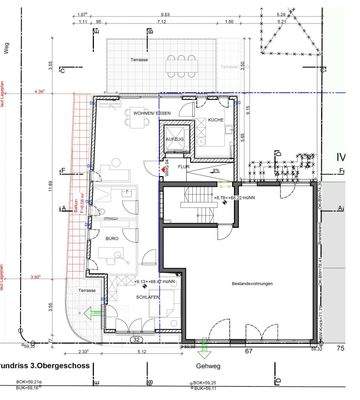
Die Wohnung
Wohnungslage
3. Geschoss
Bezug
Herbst 2025
Wohnanlage
Energie & Heizung
Warum sehe ich diese Anzeige? – Du siehst diese Anzeige basierend auf Ihrer Navigation auf unserer Website und den Suchkriterien, die du verwendet hast.
Weitere Energiedaten
Heizungsart
Fußbodenheizung, Luft-/Wasser-Wärmepumpe, Zentralheizung
Details
Objektbeschreibung
Die hier angebotene 3 Zimmer Neubauwohnung wird in bester Innenstadtlage von Bonn - nur 10 Gehminuten von der Bonner Fussgängerzone entfernt - erbaut.
Die Lage der Liegenschaft besticht neben der Nähe zum Zentrum der Stadt Bonn durch ihre herausragende Anbindung an den ÖPNV sowie die Nähe zum Rheinufer.
Der...
Ausstattung
Das 5-Parteienhaus wird in einer massiven Bauweise erstellt.
Die Küchen und Essbereiche sowie das Wohnzimmer werden in einer offenen und modernen Bauweise errichtet.
Wandflächen der Wohnungen werden geputzt oder gespachtelt und erhalten ein Malervlies und einen deckenden weißen Anstrich.
In den...
Preisinformation
1 Stellplatz, Kaufpreis: 22.000,00 EUR
Weitere Informationen
Sonstiges
HINWEIS:
Alle Daten und die in diesem Angebot getroffenen Darstellungen beziehen sich auf die uns vorliegenden Pläne, uns übergebenen Unterlagen und Skizzen sowie Aussagen des Eigentümers/Bauträgers. Für die Richtigkeit dieser Angaben, Irrtümer oder Änderungen können wir keine Haftung übernehmen. Bitte...
Anbieter der Immobilie

Online-ID: 2ly4j57
Referenznummer: 178-2025-DD
Finde Angebote wie dieses
Hier geht es zu unserem Impressum, den Allgemeinen Geschäftsbedingungen, den Hinweisen zum Datenschutz und nutzungsbasierter Online-Werbung.