

Iska Bannasch Immobilien GmbH
Frau Iska Bannasch
071 ···
Nr. anzeigenPreise & Kosten
Provision für Käufer
3,57 % inkl. gesetzlicher MwSt. inkl. MwSt.
Lage
Nordwestlich an die Landeshauptstadt Stuttgart angrenzend liegt Gerlingen, eine attraktive und selbstbewusste Stadt mit rund 19.000 Einwohnern.
Landschaftlich reizvoll inmitten von Wäldern und Streuobstwiesen gelegen erhebt sich eine eigenständige, liebenswerte Stadt, die auf eine über 1200 Jahre alte Tradition...
Die Wohnung
Kategorie
Maisonette
Wohnanlage
Details
Objektbeschreibung
Diese außergewöhnliche, im Jahr 2002 sanierte 3-Zimmer-Wohnung befindet sich in einem denkmalgeschützten Mehrparteienhaus mit nur 4 Parteien aus etwa 1820, zentral gelegen in Gerlingen.
Auf ca. 93 m² Wohnfläche erleben Sie ein ganz besonderes Wohngefühl - hier trifft historischer Charme auf modernen Komfort. Ein echtes...
Weitere Informationen
Sonstiges
- 3-Zimmer-Wohnung
- Mehrparteienhaus
- zentrale Lage in Gerlingen
- das Objekt liegt im Sanierungsgebiet
- Baujahr: um etwa 1820
- Wohnfläche: ca. 93 m²
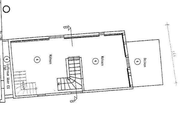
- Etagen: 3 (EG, OG, DG)
- mit Terrasse und Balkon
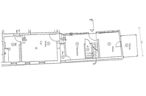
Erdgeschoss:
- offene Küche mit moderner und gepflegter Einbauküche (2023)...
Anbieter der Immobilie

Online-ID: 2ly595n
Referenznummer: 353
Finde Angebote wie dieses
Hier geht es zu unserem Impressum, den Allgemeinen Geschäftsbedingungen, den Hinweisen zum Datenschutz und nutzungsbasierter Online-Werbung.