
IM Lifestyle Properties GmbH
Frau Viola Wasmuth
+43 ···
Nr. anzeigenPreise & Kosten
Provision für Käufer
3% des Kaufpreises zzgl. 20% USt.
Das Haus
Baujahr
1900
Bezug
ab sofort
Energie & Heizung
Warum sehe ich diese Anzeige? – Du siehst diese Anzeige basierend auf Ihrer Navigation auf unserer Website und den Suchkriterien, die du verwendet hast.
Heizwärmebedarf (HWB)
78,37 kWh/(m²·a)
Weitere Energiedaten
Energieträger
Gas
Heizungsart
Etagenheizung, Fußbodenheizung
Details
Objektbeschreibung
_Im Falle der Notwendigkeit einer Fremdfinanzierung Ihrer Wunschimmobilie ermittelt unser Wohnbau-Finanzierungsexperte gerne die optimale Finanzierungslösung und findet das passende Zins- und Konditionsangebot für Sie. Er vergleicht die aktuellen Angebote aller relevanten Banken und Bausparkassen. Der Angebotsvergleich kann...
Weitere Informationen
Stichworte
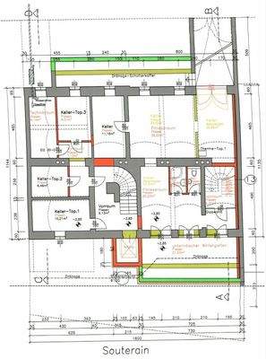
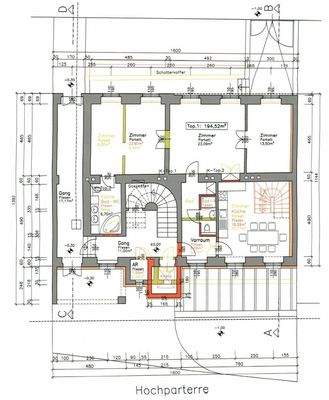
Anzahl der Badezimmer: 6, Anzahl der separaten WCs: 6, Anzahl Terrassen: 1, Balkon-Terrassen-Fläche: 45,36 m², Gartenfläche: 101,32 m², Kellerfläche: 24,90 m², Bundesland: Wien, 3 Etagen
Wellness: Wellnessbereich
Anbieter der Immobilie
IM Lifestyle Properties GmbH
Stock-im-Eisen-Platz 3/26, 1010 WIEN
Online-ID: 2lya75f
Referenznummer: OBGC20190428201759636h4uvub7ela
Finde Angebote wie dieses
Günstige Immobilienfinanzierung einfach online berechnen
Persönliches Angebot berechnenWarum sehe ich diese Werbung? – Du siehst diese Werbung basierend auf Deiner Navigation auf unserer Website und der von Dir verwendeten Suchkriterien.
Diese Werbung wird bezahlt von durchblicker
Werbung melden
Hier geht es zu unserem Impressum, den Allgemeinen Geschäftsbedingungen, den Hinweisen zum Datenschutz und nutzungsbasierter Online-Werbung.