
Raiffeisen Immobilien Vermittlung GmbH
Herr Andreas Zach
+43 ···
Nr. anzeigenPreise & Kosten
Provision für Käufer
3% des Kaufpreises plus 20% USt.
Lage
Das Neubauprojekt in der Bachgasse 1, 2122 Münichsthal, liegt idyllisch im Weinviertel, einer der malerischsten Regionen Niederösterreichs. Münichsthal, ein kleiner, ruhiger Ort ca. 3 km von Wolkersdorf entfernt, bietet eine perfekte Kombination aus ländlicher Ruhe und schneller Erreichbarkeit der Stadt. In nur 25 Minuten...
Die Wohnung
Wohnungslage
1. Geschoss
Bezug
Sofort
Wohnanlage
Energie & Heizung
Warum sehe ich diese Anzeige? – Du siehst diese Anzeige basierend auf Ihrer Navigation auf unserer Website und den Suchkriterien, die du verwendet hast.
Heizwärmebedarf (HWB)
35,70 kWh/(m²·a)
Gesamtenergieeffizienz (fGEE)
0,65
Weitere Energiedaten
Heizungsart
Fußbodenheizung, Luft-/Wasser-Wärmepumpe
Details
Objektbeschreibung
Kurzbeschreibung
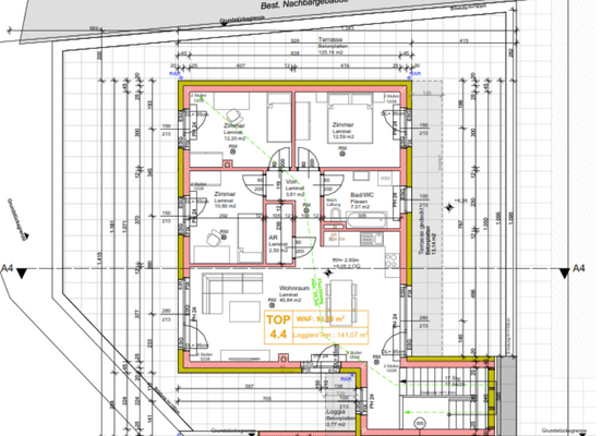
Moderne Dachgeschoss-Wohnung in Münichsthal mit ca. 93,89 m² Wohnfläche, Terrasse und belagsfertiger Übergabe für € 559.867,00. Die ruhige Lage bietet eine schnelle Anbindung nach Wien und ist ideal für Pendler geeignet.
Objekt
Diese hochwertig errichtete 4-Zimmer Wohnung in der charmanten...
Ausstattung
Rohbau:Die Tragstruktur besteht aus Ziegelmauerwerk (Porotherm 25 cm) und Stahlbeton. Fundamente werden in Stahlbeton gemäß statischen Anforderungen ausgeführt.
Treppen und Geländer:Haupttreppe in Stahlbeton, Handläufe aus verzinktem Eisen und Glasgeländer für Terrassen/Balkone.
Wände:Außen- und Innenwände aus...
Preisinformation
Es stehen 16 exklusive Wohneinheiten zu einem Preis zwischen EUR 249.000,00 und EUR 549.000,00 zum Verkauf. Der Kaufpreis beinhaltet nicht die Kosten für einen Parkplatz, die zusätzlich mit EUR 15.000,00 veranschlagt sind.
Da es sich um ein Neubauprojekt handelt, können die genauen Betriebskosten erst nach Übergabe der...
Weitere Informationen
Stichworte
Anzahl der Schlafzimmer: 3, Anzahl der Badezimmer: 1, Anzahl der separaten WCs: 1, Anzahl Terrassen: 1, Anzahl Loggias: 1, Bundesland: Niederösterreich, 2 Etagen
Dokumente
Anbieter der Immobilie
Online-ID: 2lyad5e
Referenznummer: 00010093180016
Finde Angebote wie dieses
Günstige Immobilienfinanzierung einfach online berechnen
Persönliches Angebot berechnenWarum sehe ich diese Werbung? – Du siehst diese Werbung basierend auf Deiner Navigation auf unserer Website und der von Dir verwendeten Suchkriterien.
Diese Werbung wird bezahlt von durchblicker
Werbung melden
Hier geht es zu unserem Impressum, den Allgemeinen Geschäftsbedingungen, den Hinweisen zum Datenschutz und nutzungsbasierter Online-Werbung.