Version: 8.25.1Navigation überspringen
370.000 €
6 Zimmer  •  209,8 m²  •  2.028 m² Grundstück  •  frei ab sofort
Immowelt logo

Mehrfamilienhaus zum Kauf
370000 €
1.764 €/m²
6 Zimmer  •  209,8 m²  •  2.028 m² Grundstück  •  frei ab sofort

Wohnen, Gewerbe, Vermietung oder Mietkauf? Hier ist vieles möglich!

Objektbeschreibung Das großzügige Grundstück kann geteilt werden und der bisher gewerbliche Teil getrennt verkauft, verpachtet oder genutzt werden.

Auch ein Mietkauf ist verhandelbar!

Es befindet sich eine Wasserquelle auf dem Grundstück.

Hier steht ein besonderes Objekt mit zwei Doppelgaragen, vielen Stellplätzen und drei möglichen Werkstätten (ehemalige Schlosserei und Heizungsbau) und einem Wohnhaus in Aussichtslage in Langenbernsdorf zum Verkauf.

Wohnhaus:
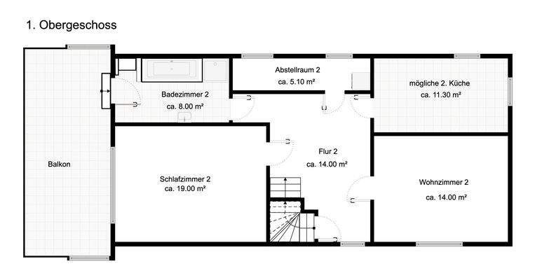
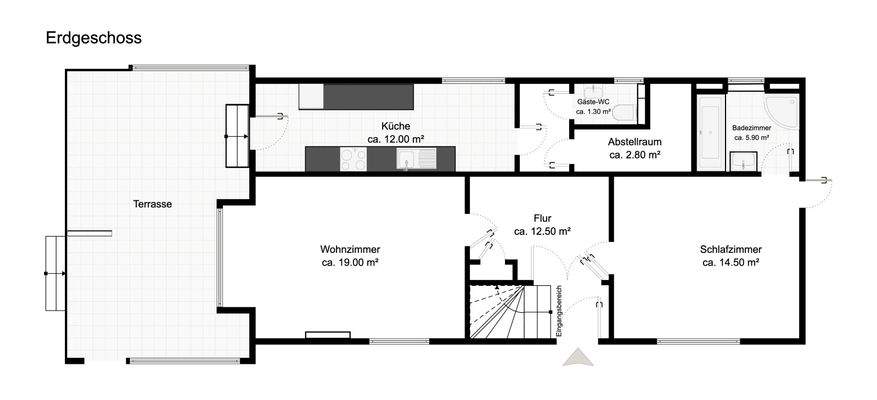
Die Erdgeschoss Wohnung mit ca. 70 m2 Wohnfläche, die Obergeschoß Wohnung mit ebenfalls ca. 70 m2 und das teilweise ausgebaute Dachgeschoß mit ca. 30 m2 Grundfläche warten auf neue Eigentümer. Eine Nutzung als Zweifamilienhaus ist möglich! Es besteht eine Teil Unterkellerung.

Die erste Werkstatt, und ehemalige Schlosserei, verfügt über eine Grundfläche von 14 m x 7 m und ca. 90 m2 im Erdgeschoß, im Dach nochmals 35 m2 und einen zusätzlichen Anbau mit 3,7 m x 2,7 m mit Überdachung von 8 m x 7 m.

Das zweite 1963 errichtete Gebäude verfügt über eine Grundfläche von 9,8 m x 8,5 m. Im Keller befinden sich der Waschraum mit Außentreppe und die Heizung. Ebenerdig ist Platz für zwei Fahrzeuge, eine Toilette befindet sich auf dieser Ebene. Im Dachgeschoß sind die ehemaligen Büroräume der Schlosserei.

Die dritte 1990 errichtete Werkstatt ( Heizungsbau) hat ca. 140 m2, ein Büro, einen Vorraum und einen Aufenthaltsraum mit Toilette. Eine Tiefgarage für zwei Fahrzeuge, und ein zweiter Heizungsraum sind ebenfalls vorhanden.

Es wurden zwischen 1990 und 2000 die beiden Ölheizungen eingebaut und das Dach des Wohnhauses neu gedeckt und gedämmt. Wohnhaus und Werkstatt haben Holzfenster aus 1995/1996.
Die Werkstatt aus 1990 hat Kunststofffenster aus 2015.

Eine weiterhin gewerbliche Nutzung ist möglich.


Alle Angaben sind Auskünfte der Eigentümer ohne Gewährleistung. Aufteilung Die Aufteilung der Räume entnehmen sie bitte den beigefügten pdf. Dateien.

Ein 360´ Rundgang als virtuelle Besichtigung kann ihnen gerne nach Kontaktaufnahme zur Verfügung gestellt werden.

Merkmale

  • Bezug: nach Vereinbarung
  • 3 Geschosse
  • 2.028 m² Grundstück
  • Speisekammer
  • Keller
  • Garage, Außen-Stellplatz
  • Bad/WC getrennt, Gäste-WC
  • Balkon

Grundrisse

Grundrisse
1 / 6

Realisiere Dein Projekt

Bausubstanz und Energie

Energieausweis

G
  • Baujahr1960/1974/1990
  • Zustand der ImmobilieMassivhaus
  • HeizungsartZentralheizung
  • EnergieträgerÖl
Immowelt logo

Preisdetails

Kaufpreis
370000 €
1.763,58 €/m²
Provision für Käufer
Die Provision in Höhe von 3,57 % inclusive der gesetzlichen Mehrwertsteuer auf den Kaufpreis ist verdient und fällig nach Zustandekommen des Kaufvertrages (notarieller Vertragsabschluss).
Geschätzte Gesamtkosten
410.959 €1
Kaufpreis
370.000 €
Notarkosten (1,5%)
5.550 €
Grunderwerbsteuer (5,5%)
20.350 €
Provision für Käufer (3,57%)
13.209 €
Grundbucheintrag (0,5%)
1.850 €
1Der angezeigte Wert ist eine automatisch berechnete Schätzung von immowelt.
2Bei den Angaben handelt es sich um ortsübliche Werte. Individuelle Kosten können abweichen.

Lage

address-icon
Langenbernsdorf (08428)
Der Anbieter hat die genaue Adresse nicht freigegeben
Der Ort Langenbernsdorf macht seinem Namen alle Ehre und ist einer der längsten Orte in Sachsen. Gegründet im 13. Jahrhundert wurde Langenbernsdorf als Waldhufendorf beidseitig des Mühlbaches angelegt. Heute wird der Ort charakterisiert von den circa 120 Vierseitenhöfen, die häufig von Bauerngärten oder Streuobstwiesen umgeben sind und vielfach unter Denkmalschutz stehen. Langenbernsdorf hat 2003 den zweiten Platz im Bundeswettbewerb "Unser Dorf hat Zukunft" gewonnen.
Region Erzgebirge Vogtland

Entfernungen:
Werdau 4,6 km, Crimmitschau 8,8 km, Zwickau 17,5 km.
Autobahnanschluss ca. 15 km

Weitere Informationen

Besichtigung und Angebot Hier ist durch eine mögliche Vermietung oder Verpachtung eine Grundlage der Finanzierung geschaffen.
Eine Teilung des Grundstückes in Gewerbe und Wohnen ist ebenfalls gegeben!

Bitte klären sie vor den Angebotsabgabe ihre mögliche Finanzierung.
Weitere Unterlagen und eine Onlinebesichtigung können zur Verfügung gestellt werden.
Stichworte Zustand: renoviert, gepflegt Sonstiges/Wohnen: Dachboden Versorgung: Städtische Wasserversorgung, Städtische Stromversorgung

Weitere Services

Lust auf eine Besichtigung?
Eine Frage zur Immobilie?
Nachricht hinzufügen
Mit der Nutzung der oben angegebenen Telefonnummer oder durch Klicken auf „Kontaktieren“ akzeptierst Du die Allgemeinen Nutzungsbedingungen, denen Du jederzeit widersprechen kannst. Weitere Informationen zum Datenschutz

Über den Anbieter

Alfred-Weiß-Straße 3, 88085 Langenargen
partner badge
3 Jahre Partnerschaft
Herr Marzell HeiligDein Kontakt
Online-ID: 25F1X3XN8G3K
1A LG AURORA LUMIS GOLDBERG  SiNNOBiLiEN UG
1A LG AURORA LUMIS GOLDBERG SiNNOBiLiEN UG
Nachricht hinzufügen
Mit der Nutzung der oben angegebenen Telefonnummer oder durch Klicken auf „Kontaktieren“ akzeptierst Du die Allgemeinen Nutzungsbedingungen, denen Du jederzeit widersprechen kannst. Weitere Informationen zum Datenschutz
Wie zufrieden bist du mit dieser Seite (nicht mit der Immobilie selbst)?