
RE/MAX Lörrach, Müllheim, Freiburg
Herr Fritz Bruchmann
004 ···
Nr. anzeigenPreise & Kosten
Provision für Käufer
3,57 % inkl. gesetzl. MwSt. (19%) inkl. MwSt.
Lage
"Grüß Gott" IN ÜBERLINGEN - DIREKT AM BODENSEE
Die Altstadtkulisse - bunt & lebendig!
Die Menschen - herzlich & mitreißend!
Der Alltag - weit & weg!
Der Gebäudekomplex mit der Wohnung im Ortstteil Aufkirch liegt sehr ruhig in einer grünen Umgebung. In nur wenigen Minuten erreicht man die...
Die Wohnung
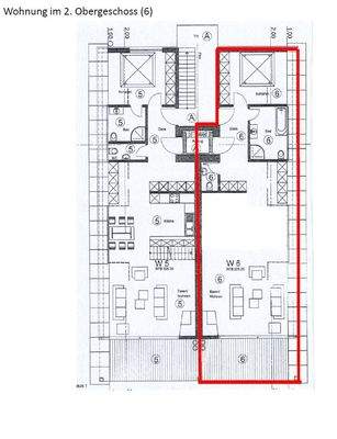
Wohnungslage
Dachgeschoss
Wohnanlage
Energie & Heizung
Warum sehe ich diese Anzeige? – Du siehst diese Anzeige basierend auf Ihrer Navigation auf unserer Website und den Suchkriterien, die du verwendet hast.
Energieausweistyp
Verbrauchsausweis
Gebäudetyp
Wohngebäude
Baujahr laut Energieausweis
2008
Wesentliche Energieträger
GAS
Gültigkeit
bis 29.05.2032
Effizienzklasse
D
Endenergieverbrauch
111,00 kWh/(m²·a)
Weitere Energiedaten
Energieträger
Gas
Heizungsart
Fußbodenheizung
Details
Objektbeschreibung
Das große RE/MAX Immobilien Netzwerk Südbaden // Lörrach-Weil am Rhein-Rheinfelden-Schopfheim-Müllheim-Freiburg // Die *NR. 1* Immobilienvermittlung mit Ihrem 1. Ansprechpartner Fritz Bruchmann von RE/MAX in Ihrer Nähe freuen wir uns Ihnen diese spannende Immobilie im exklusiven Kooperations-Auftrag mit einem...
Ausstattung
- ART: Wohnung
- TYP: Obergeschoss/Dachgeschoss
- GRÖSSE: 2-Zimmer-Wohnung
[Info !] davon 1 Schlafzimmer (SZ), 1 großer Wohnzimmer-Essbereich
- IMMOBILIE: Massiv gebautes MFH
[Info !] Sehr gute Bausubstanz
- BAUJAHR: 2008
- MODERNISIERUNG: 2024 neue Einbauküche
- WOHNFLÄCHE: ca. 78 m²
- HAUSGELD: ca...
Preisinformation
1 Stellplatz
Weitere Informationen
Sonstiges
*THE RE/MAX COLLECTION* Atemberaubende 2-Zimmer-Wohnung mit unbezahlbarem Weitblick auf den Bodensee
Hinweis: Exklusive Kooperation mit einem Partnerunternehmen. Vor einer Besichtigung ist zwingend die Nachweisbestätigung des Partners zu unterzeichnen. Vielen Dank.
Basiert auf einer von RE/MAX...
Anbieter der Immobilie
RE/MAX Lörrach, Müllheim, Freiburg
Tumringer Straße 284, 79539 Lörrach
Online-ID: 2lyen5y
Referenznummer: 1069-589-1-FB
Finde Angebote wie dieses
Hier geht es zu unserem Impressum, den Allgemeinen Geschäftsbedingungen, den Hinweisen zum Datenschutz und nutzungsbasierter Online-Werbung.