

IC IMMOCONSULT e.K.
Herr Ron Kaufmann
034 ···
Nr. anzeigenPreise & Kosten
Provision für Mieter
provisionsfrei
Warum sehe ich diese Anzeige? – Du siehst diese Anzeige basierend auf Ihrer Navigation auf unserer Website und den Suchkriterien, die du verwendet hast.
Lage
Diese Immobilie befindet sich auf der beliebten Hauptgeschäftsstraße des Leipziger Südens, der Karl-Liebknecht-Straße.
Die Leipziger Südvorstadt ist ein unmittelbar südlich an das Zentrum angrenzender Stadtteil Leipzigs.
Er erstreckt sich südlich von der Riemannstraße bis zur Richard-Lehmann-Straße...
Gastronomie/Hotel
Kategorie
Restaurant
Bezug
sofort
Energie & Heizung
Warum sehe ich diese Anzeige? – Du siehst diese Anzeige basierend auf Ihrer Navigation auf unserer Website und den Suchkriterien, die du verwendet hast.
Weitere Energiedaten
Heizungsart
Zentralheizung
Details
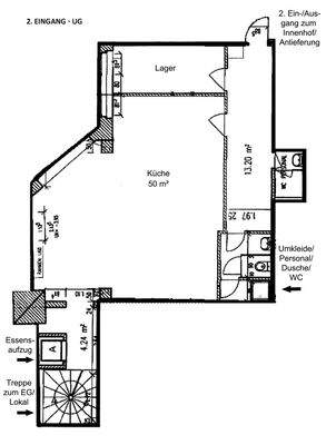
Objektbeschreibung
Maisonette - Gastronomie-/ Gewerbe-/ Ladenfläche in sehr guter Lage von Leipzig.
Die Einheit wurde 2022 neu renoviert.
Die Räumlichkeiten bieten ausreichend Platz für verschiedene gewerbliche Nutzungen. Die Räume sind geräumig und gut beleuchtet, was eine angenehme Arbeitsatmosphäre schafft. Die offene Gestaltung...
Ausstattung
- einzigartiges Entrée
- historisches Gebäude
- die derzeitige Möblierung ist NICHT mit im Mietpreis inbegriffen
- Küchenabluft ist nur mit Plasma-/ Aktivkohlefilter möglich (nur "leichte" Küche)
- Personalraum mit Umkleide
- Essensaufzug vorhanden
- schwellenfreie Anlieferung über die untere Ebene...
Weitere Informationen
Sonstiges
Die von uns gemachten Angaben haben wir nach bestem Wissen und Gewissen nach Informationen des Vermieters/Verkäufers und den uns übergebenen Informationen zusammengestellt. Eine Gewähr für diese Angaben können wir nicht übernehmen.
Wichtige Zahlen und Informationen sind am Objekt zu...
Anbieter der Immobilie
IC IMMOCONSULT e.K.
Hillerstraße 3, 04109 Leipzig

Online-ID: 2lyfb5m
Referenznummer: 302g71#yWqe1d
Finde Angebote wie dieses
Hier geht es zu unserem Impressum, den Allgemeinen Geschäftsbedingungen, den Hinweisen zum Datenschutz und nutzungsbasierter Online-Werbung.