

Laden zum Kauf79900 €2 Zimmer • 62,3 m² Verkaufsfläche
79900 €
2 Zimmer • 62,3 m² Verkaufsfläche
Moderner kleiner Laden in der historischen Altstadt
Merkmale
- 6 m Schaufensterfront
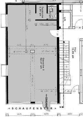
Grundrisse
Grundrisse
1 / 1
Realisiere Dein Projekt
Bausubstanz und Energie
Energieausweis
Endenergiebedarf (Wärme)
- Baujahr1999
- Zustand der ImmobilieGepflegt
- EnergieträgerFernwärme
Preisdetails
Kaufpreis
79900 €
Provision für Käufer
4,76 % inkl. MwSt.
Geschätzte Gesamtkosten
83.703 €1
Kaufpreis
79.900 €
Kaufnebenkosten
3.803 €
2Provision für Käufer (4,76%)
3.803 €
1Der angezeigte Wert ist eine automatisch berechnete Schätzung von immowelt.
2Bei den Angaben handelt es sich um ortsübliche Werte. Individuelle Kosten können abweichen.
Lage

Gotha (99867)
Der Anbieter hat die genaue Adresse nicht freigegeben
Weitere Informationen
Weitere Services
Lust auf eine Besichtigung?
Eine Frage zur Immobilie?
Über den Anbieter
Arnoldiplatz 5, 99867 Gotha
Partnerschaft

Frau Mandy BrendelDein Kontakt
Online-ID: 24ECEWEJQPEU
Referenznummer: 500423


HONNEF Immobilien
Bewertung: 3,5 von 5 Sternen
Wie zufrieden bist du mit dieser Seite (nicht mit der Immobilie selbst)?

