
AREV Immobilien GmbH
Frau Mathilde Feichtenschlager
066 ···
Nr. anzeigenPreise & Kosten
inkl. Betriebskosten
Kaution
2.000,00 €
Provision für Mieter
Gemäß Erstauftraggeberprinzip bezahlt der Abgeber die Provision.
Warum sehe ich diese Anzeige? – Du siehst diese Anzeige basierend auf Ihrer Navigation auf unserer Website und den Suchkriterien, die du verwendet hast.
Lage
Die Etagenwohnung in Grieskirchen bietet eine hervorragende Lage für Familien und Berufstätige. In unmittelbarer Nähe finden Sie alles, was das Herz begehrt: Ärzte, Apotheken, ein Krankenhaus sowie Schulen und Kindergärten für die Kleinen. Supermärkte sorgen für eine erstklassige Nahversorgung. Auch Banken, Geldautomaten und...
Die Wohnung
Bezug
Sofort
Wohnanlage
Energie & Heizung
Warum sehe ich diese Anzeige? – Du siehst diese Anzeige basierend auf Ihrer Navigation auf unserer Website und den Suchkriterien, die du verwendet hast.
Heizwärmebedarf (HWB)
133,00 kWh/(m²·a)
Weitere Energiedaten
Energieträger
Gas
Heizungsart
Zentralheizung
Details
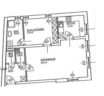
Objektbeschreibung
Immobilienart: 2-Zimmer Wohnung
Lage/Objekt: Zentrum von Grieskirchen
Lage/Mietgegenstand: 2-Zimmer-Wohnung im 1. Obergeschoß (kein Lift)
Vermittlungstyp: Mietwohnung, befristetes Mietverhältnis, Kündigung nach Ablauf des ersten...
Preisinformation
1 Stellplatz
Nettokaltmiete: 446,80 EUR
Weitere Informationen
Stichworte
Stellplatz vorhanden, Gesamtfläche: 62,49 m², Anzahl der Badezimmer: 1, Anzahl der separaten WCs: 1, Bundesland: Oberösterreich
Anbieter der Immobilie

AREV Immobilien GmbH
Hannesgrub Süd 6, 4911 RIED IM INNKREIS
Online-ID: 2lyng59
Referenznummer: OBGC20250820102900794d585da6bc0
Finde Angebote wie dieses
Hier geht es zu unserem Impressum, den Allgemeinen Geschäftsbedingungen, den Hinweisen zum Datenschutz und nutzungsbasierter Online-Werbung.