

Schwarze Immobilien GmbH &Co. KG
Herr Holger Blücher
+49 ···
Nr. anzeigenPreise & Kosten
Provision für Käufer
3,57 % vom Kaufpreis (inkl. MwSt.) inkl. MwSt.
Lage
Der im Düsseldorfer Süden gelegene Stadtteil Unterbach zählt zu den beliebtesten Wohngebieten in grüner Randlage der Landeshauptstadt.
Erholung pur bietet gleich in der Nachbarschaft der Unterbacher See mit seinen Strandbädern, zum Joggen, Fahrradfahren oder Segeln. Hier leben Sie nah an der Natur, in gehobener...
Die Wohnung
Wohnungslage
Dachgeschoss
Wohnanlage
Energie & Heizung
Warum sehe ich diese Anzeige? – Du siehst diese Anzeige basierend auf Ihrer Navigation auf unserer Website und den Suchkriterien, die du verwendet hast.
Weitere Energiedaten
Energieträger
Elektro
Heizungsart
Fußbodenheizung
Details
Objektbeschreibung
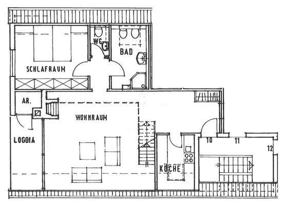
Attraktive Galeriewohnung im zweiten Obergeschoss.
Mittelpunkt der Wohnung ist der offen gestaltete Wohn- und Essbereich mit über 38?m². Das große Fensterelement mit Zugang zur Südloggia sind ein echter Blickfang und sorgen für viel Licht. Besonders praktisch ist der Abstellraum an der Loggia für...
Ausstattung
- Wohnfläche ca. 103 m² zzgl. Nutzfläche (Spitzboden) ca. 17 m²
- Tageslicht Duschbad und separates Gäste-WC
- Fliesen- und Teppichböden
- Loggia in Südausrichtung mit Abstellraum
- Elektro-Fußbodenheizung
- Kellerraum
Weitere Informationen
Sonstiges
Eigentum am Unterbacher See!
Energieausweis: Nicht vorhanden / in Vorbereitung!
Stichworte
Süd-Balkon/Terrasse, Anzahl der Schlafzimmer: 2, Anzahl der Badezimmer: 1
Anbieter der Immobilie

Online-ID: 2lyp95e
Referenznummer: 5951
Finde Angebote wie dieses
Hier geht es zu unserem Impressum, den Allgemeinen Geschäftsbedingungen, den Hinweisen zum Datenschutz und nutzungsbasierter Online-Werbung.