

Zieglmeier Immobilien OHG
Frau Elena Zieglmeier
+49 ···
Nr. anzeigenPreise & Kosten
Provision für Käufer
3,57% inkl. MwSt inkl. MwSt.
Nach Abschluss eines rechtswirksamen Kaufvertrages ist der Käufer verpflichtet eine Provision in Höhe von 3,57 % inkl. MwSt. vom notariellen Kaufpreis an den Makler zu bezahlen.
Lage
Die malerischen Gemeinde Königsmoos ist eingebettet in die idyllische Landschaft des oberbayerischen Landkreises Neuburg-Schrobenhausen. Diese ruhige und familienfreundliche Gegend bietet eine perfekte Mischung aus ländlicher Gelassenheit und städtischer Nähe. Dank einer gut ausgebauten Infrastruktur sind...
Das Haus
Kategorie
Einfamilienhaus
Baujahr
2012
Bezug
01.01.2026
Energie & Heizung
Warum sehe ich diese Anzeige? – Du siehst diese Anzeige basierend auf Ihrer Navigation auf unserer Website und den Suchkriterien, die du verwendet hast.
Energieausweistyp
Verbrauchsausweis
Gebäudetyp
Wohngebäude
Baujahr laut Energieausweis
2012
Wesentliche Energieträger
FLUESSIGGAS
Gültigkeit
bis 19.12.2034
Effizienzklasse
D
Endenergieverbrauch
103,50 kWh/(m²·a)
Weitere Energiedaten
Haustyp
Massivhaus
Heizungsart
Fußbodenheizung, Luft-/Wasser-Wärmepumpe
Details
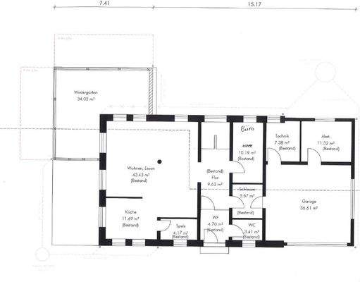
Objektbeschreibung
Dieses gepflegte Einfamilienhaus in Königsmoos wurde im Jahr 2012 in moderner, massiver Ziegelbauweise errichtet und überzeugt mit einer durchdachten Raumaufteilung, zeitgemäßer technischer Ausstattung und einem großzügigen Grundstück. Die Wohnfläche von ca. 161?m² erstreckt sich über zwei Ebenen und bietet ideale Bedingungen...
Ausstattung
-Heizung NEU! Im August 2025 erfolgte der Einbau einer Luft/Wärmepumpe,(der derzeitige Energieausweis basiert hinsichtlich Heizart und Verbrauch auf dem Betrieb der vormaligen Gasheizung)
-Photovoltaikanlage (Erweiterung mit neuen Paneelen 2024)
-Zwei Wallboxen in der Doppelgarage
-Sehr gute...
Weitere Informationen
Stichworte
Nutzfläche: 161,00 m², Anzahl der Schlafzimmer: 3, Anzahl der Badezimmer: 2, Anzahl der separaten WCs: 1, Anzahl Terrassen: 1
Anbieter der Immobilie

Online-ID: 2lyrl52
Referenznummer: vkp1680
Finde Angebote wie dieses
Hier geht es zu unserem Impressum, den Allgemeinen Geschäftsbedingungen, den Hinweisen zum Datenschutz und nutzungsbasierter Online-Werbung.