

MONACO Generalbau GmbH
Frau Ines Godl
086 ···
Nr. anzeigenDieses Angebot ist Teil des Neubauprojekts
Wohnen und Leben am Wächterhof
Preise & Kosten
Provision für Käufer
provisionsfrei
Lage
Höhenkirchen-Siegertsbrunn ist eine charmante Gemeinde im Münchner Umland, die durch ihre perfekte Kombination aus ländlicher Idylle und urbanem Leben besticht. Die idyllische Lage bietet eine hohe Lebensqualität und eignet sich ideal für Singles, Familien, Paare und Naturliebhaber. Weitere Vorzüge der Gemeinde sind wie folgt...
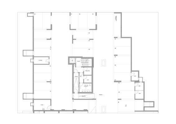
Die Wohnung
Wohnungslage
Erdgeschoss
Bezug
03.2026
Wohnanlage
Das Neubauprojekt
Energie & Heizung
Warum sehe ich diese Anzeige? – Du siehst diese Anzeige basierend auf Ihrer Navigation auf unserer Website und den Suchkriterien, die du verwendet hast.
Energieausweistyp
Bedarfsausweis
Gebäudetyp
Wohngebäude
Baujahr laut Energieausweis
2023
Wesentliche Energieträger
Strom
Gültigkeit
25.08.2023 bis 25.08.2033
Effizienzklasse
A+
Endenergiebedarf
14,70 kWh/(m²·a)
Weitere Energiedaten
Energieträger
Elektro
Haustyp
KfW 55
Heizungsart
Fußbodenheizung, Luft-/Wasser-Wärmepumpe
Details
Objektbeschreibung
WILLKOMMEN IN IHREM NEUEN ZUHAUSE!
Entdecken Sie diese moderne 4- Zimmer Neubauwohnung in einer attraktiven und idyllischen Lage von Höhenkirchen-Siegertsbrunn.
Die stilvolle 4-Zimmer-Wohnung, mit einer Wohnfläche von circa 93 m², bietet Ihnen einen durchdachten Grundriss, der modernes Wohnen perfekt...
Ausstattung
Die 4-Zimmer Neubauwohnung bietet Ihnen eine moderne, komfortable Wohnmöglichkeit in einem attraktiven Umfeld.
Überzeugend sind unter anderem folgende Ausstattungshighlights:
- Personenaufzug - Tiefgaragenstellplätze - Fassadenbegrünung & gelebter Artenschutz mit bienenfreundlichen Pflanzen, Bäume und...
Weitere Informationen
Sonstiges
Vielen Dank für Ihr Interesse an dieser Neubauwohnung in Höhenkirchen-Siegertsbrunn.
Sollten Sie weitere Fragen haben oder das Exposé wünschen, so kontaktieren Sie mich.
Ich freue mich, Sie bald persönlich kennenzulernen, um Ihnen Ihr neues Zuhause vorzustellen!
Bei den dargestellten und /...
Anbieter der Immobilie
MONACO Generalbau GmbH
Isenstraße 4, 84431 Heldenstein

Online-ID: 2lyrp5g
Finde Angebote wie dieses
Weitere Immobilien
Hier geht es zu unserem Impressum, den Allgemeinen Geschäftsbedingungen, den Hinweisen zum Datenschutz und nutzungsbasierter Online-Werbung.