
FECHNER IMMOBILIEN
Herr Daniel Fechner
004 ···
Nr. anzeigenPreise & Kosten
Provision für Käufer
provisionsfrei
Lage
Das Mehrfamilienhaus wurde im Ingolstädter Südosten (Augustinviertel) errichtet. Dank der zentrumsnahen Lage ist auch die Ingolstädter Innenstadt bequem zu erreichen. Innerhalb des Grundstücks befindet sich die Immobilie im hinteren Gebäudekomplex und erstreckt sich über die gesamte Dachgeschoss-Etage.
In naher...
Die Wohnung
Wohnungslage
2. Geschoss (Dachgeschoss)
Bezug
sofort verfügbar
Wohnanlage
Energie & Heizung
Warum sehe ich diese Anzeige? – Du siehst diese Anzeige basierend auf Ihrer Navigation auf unserer Website und den Suchkriterien, die du verwendet hast.
Energieausweistyp
Verbrauchsausweis
Gebäudetyp
Wohngebäude
Baujahr laut Energieausweis
2000
Wesentliche Energieträger
NAHWAERME
Gültigkeit
bis 17.09.2034
Effizienzklasse
B
Endenergieverbrauch
53,00 kWh/(m²·a)
Weitere Energiedaten
Energieträger
Gas
Heizungsart
Zentralheizung
Details
Objektbeschreibung
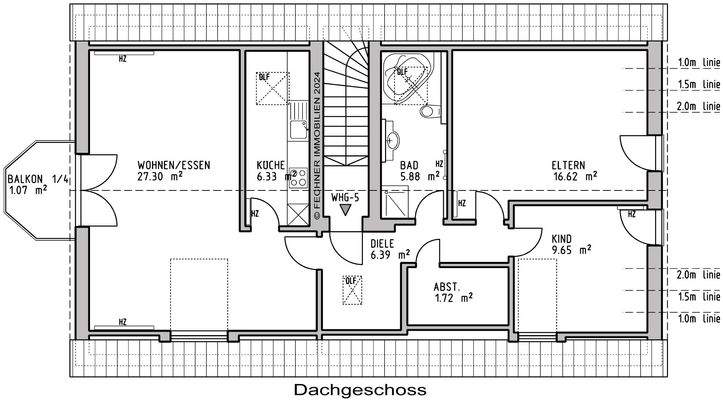
Verkauft wird eine 3-Zimmer-Dachgeschoss Wohnung in zentrumsnaher Lage des Ingolstädter Südostens. Die Wohnung befindet sich im hinteren Gebäude des Grundstücks und erstreckt sich über die gesamte Dachgeschoss-Etage.
+ Es erwarten Sie 3 ZKB bei circa 74,96m² Wohnfläche.
+ Ein Kellerabteil und ein Abstellraum...
Ausstattung
Gerne beschreiben wir Ihnen nachstehend einige Details zur Innenausstattung.
+ Kunststofffenster in der Farbe Weiß mit 2-Scheiben-Isolierverglasung und Rollos (überwiegend).
+ Alle Decken / Dachschrägen sind pflegeleicht aus hellen weißen Holzpaneelen gefertigt.
+ In den Wohn- und Schlafräumen befindet sich...
Preisinformation
1 Tiefgaragenstellplatz
Weitere Informationen
Sonstiges
Es liegt ein Energieverbrauchsausweis vor.
Dieser ist gültig bis 17.9.2034.
Endenergieverbrauch beträgt 53.00 kwh/(m²*a).
Wesentlicher Energieträger der Heizung ist Nahwärme.
Das Baujahr des Objekts lt. Energieausweis ist 2000.
Die Energieeffizienzklasse ist B.
Alle Angaben basieren auf...
Anbieter der Immobilie
Online-ID: 2lytm5c
Referenznummer: 5059
Finde Angebote wie dieses
Hier geht es zu unserem Impressum, den Allgemeinen Geschäftsbedingungen, den Hinweisen zum Datenschutz und nutzungsbasierter Online-Werbung.