
IM Lifestyle Properties GmbH
Herr Christian Kiedl
+43 ···
Nr. anzeigenPreise & Kosten
Kaution
3 Bruttomonatsmieten
Provision für Mieter
3 Bruttomonatsmieten zzgl. 20% USt.
Warum sehe ich diese Anzeige? – Du siehst diese Anzeige basierend auf Ihrer Navigation auf unserer Website und den Suchkriterien, die du verwendet hast.
Gastronomie/Hotel
Kategorie
Café/Bar
Baujahr
1900
Energie & Heizung
Warum sehe ich diese Anzeige? – Du siehst diese Anzeige basierend auf Ihrer Navigation auf unserer Website und den Suchkriterien, die du verwendet hast.
Heizwärmebedarf (HWB)
111,20 kWh/(m²·a)
Gesamtenergieeffizienz (fGEE)
2,06
Details
Objektbeschreibung
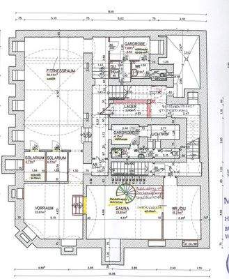
Zur Vermietung gelangt eine Bar mit Sauna auf 2 Ebenen ( Souterrain und Keller ) auf einer Fläche von ca. 323,50 m² im 8. Wiener Gemeindebezirk.
Das Objekt kann man auch als Fitnesscenter nutzen.
Das Objekt verfügt über eine vollausgestattete Küche mit Bar sowie über einen Saunabereich mit einer Finnischen...
Preisinformation
Nettokaltmiete: 2.588,00 EUR
Weitere Informationen
Stichworte
Nutzfläche: 323,50 m², Bundesland: Wien, 2 Etagen
Anbieter der Immobilie
IM Lifestyle Properties GmbH
Stock-im-Eisen-Platz 3/26, 1010 WIEN
Online-ID: 2lz385f
Referenznummer: OBGC20241213174416137f435afdee7
Finde Angebote wie dieses
Hier geht es zu unserem Impressum, den Allgemeinen Geschäftsbedingungen, den Hinweisen zum Datenschutz und nutzungsbasierter Online-Werbung.