

Mauss Bau GmbH & Co. KG
Frau Sandra Gumtau
091 ···
Nr. anzeigenPreise & Kosten
Provision für Käufer
Provision: 2,5% inkl. MwSt. vom Kaufpreis
Lage
MITTEN IM GESCHEHEN
Kurze Wege in die historische Altstadt, Naherholung direkt vor der Haustür,
eine hervorragende Infrastruktur, zahlreiche Einkaufsmöglichkeiten und ein
vielfältiges Freizeitangebot – PARK LANE begeistert mit einer äußerst lebenswerten
Umgebung in unmittelbarer Nähe zum Nürnberger Stadtpark. Egal...
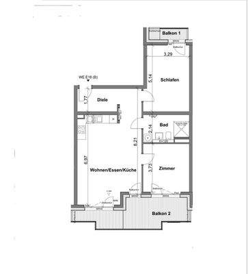
Die Wohnung
Wohnungslage
5. Geschoss
Bezug
ab sofort
Derzeitige Nutzung
frei
Wohnanlage
Energie & Heizung
Warum sehe ich diese Anzeige? – Du siehst diese Anzeige basierend auf Ihrer Navigation auf unserer Website und den Suchkriterien, die du verwendet hast.
Energieausweistyp
Bedarfsausweis
Gebäudetyp
Wohngebäude
Baujahr laut Energieausweis
2025
Wesentliche Energieträger
Nah/und Fernwärme KWK, erneuerbar
Gültigkeit
17.02.2025 bis 16.02.2035
Effizienzklasse
B
Endenergiebedarf
62,00 kWh/(m²·a)
Weitere Energiedaten
Energieträger
Fernwärme
Haustyp
KfW 55
Heizungsart
Fußbodenheizung, Zentralheizung
Details
Objektbeschreibung
Objektbeschreibung
WILLKOMMEN IM NEUBAU PARK LANE
Mit dem Neubau PARK LANE entstand im beliebten Nürnberger Norden, in unmittelbarer Nähe zum schön angelegten Stadtpark, Ihr neues Zuhause mit exklusivem Flair. Kurze Wege in die historische Altstadt, Naherholung direkt vor der Haustür, eine hervorragende Infrastruktur...
Weitere Informationen
Besichtigungstermine
Gerne kann die Wohnung nach Terminvereinbarung besichtigt werden.
Stichworte
Versorgung: Städtische Wasserversorgung
Serviceleistungen: Hausmeister
Dokumente
Anbieter der Immobilie

Mauss Bau GmbH & Co. KG

Online-ID: 2lz4r59
Referenznummer: BAY_WHG_E16
Finde Angebote wie dieses
Hier geht es zu unserem Impressum, den Allgemeinen Geschäftsbedingungen, den Hinweisen zum Datenschutz und nutzungsbasierter Online-Werbung.