Wohnzone Schlössl GmbH

Herr Johannes Gonska

BAUSTART ERFOLGT!!! Traumhafte Gartenwohnung in Perwang am Grabensee - Erstbezug, nur 239.900,00 €!

€ 239.900
Kaufpreis
41,56 m²
Wohnfläche ca.
1,5
Zimmer
Finanzierung berechnen mit durchblicker

Der Anbieter dieses Objekts hat gegenüber der AVIV Germany GmbH als Betreiber dieses Online-Marktplatzes erklärt, nicht als Unternehmer im Sinne des § 1 KSchG zu handeln. Die im Verbraucherschutzrecht der Union verankerten Verbraucherrechte (insbesondere Informationspflichten und Rücktritts- bzw. Widerrufsrechte) finden auf den Vertrag zwischen dem Anbieter des Objekts und Ihnen (dem Interessenten) keine Anwendung.

Gewerblicher Anbieter

Der Anbieter dieses Objekts hat gegenüber der AVIV Germany GmbH als Betreiber dieses Online-Marktplatzes erklärt, als Unternehmer im Sinne des § 1 KSchG zu handeln.

AdresseStraße nicht freigegeben
5165 Berndorf bei Salzburg 
Auf Karte ansehen

Preise & Kosten

Kaufpreis € 239.900

Provision für Käufer

Bitte beachte, das Angebot kann bei Vertragsabschluss die Zahlung einer Provision beinhalten. Weitere Informationen erhältst Du vom Anbieter.

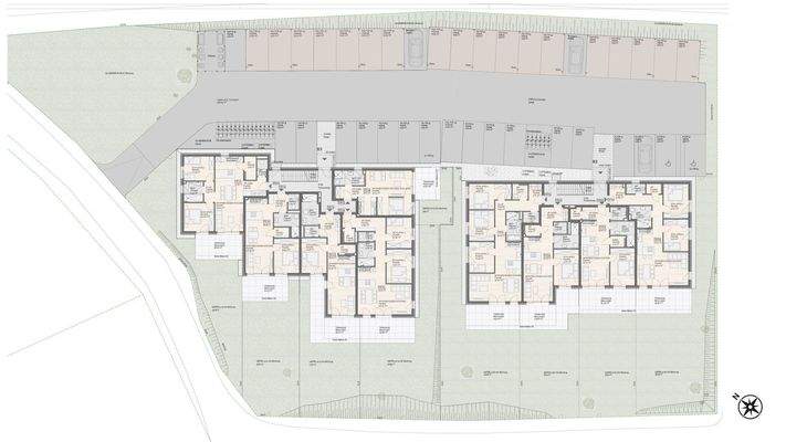
Lage

Das Projekt befindet sich im schönen Oberösterreich in Perwang am Grabensee. Es ist ein ruhiger und idyllischer Ort, der ein angenehmes naturnahes Wohnen mit einer guten Infrastruktuer ermöglicht. Genießen Sie in einer bereits vorhandenen Kleinsiedlung die Natur und erfüllen Sie sich den Traum vom Eigenheim.
In wenigen...

Mehr anzeigen

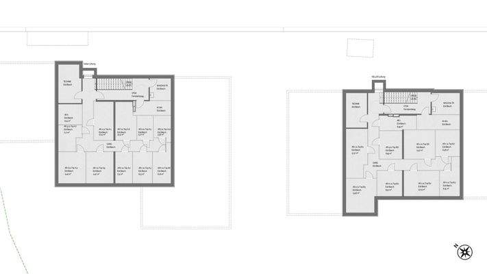
Die Wohnung

Wohnungslage

Erdgeschoss

  • Bad mit Fenster und Dusche
  • Terrasse
  • barrierefrei
  • Böden: Fliesenboden, Parkett
  • Zustand: Erstbezug

Wohnanlage

  • Zustand: Neubau
  • Personenaufzug

Energie & Heizung

Heizwärmebedarf (HWB)

41,00 kWh/(m²·a)

Gesamtenergieeffizienz (fGEE)

74,00

Weitere Energiedaten

Heizungsart

Fußbodenheizung

Details

Objektbeschreibung

Willkommen in Ihrem neuen Zuhause in Perwang am Grabensee, Oberösterreich! Diese wunderschöne Gartenwohnung bietet Ihnen alles, was Sie für ein komfortables und entspanntes Wohnen benötigen. Der Kaufpreis von 239.900,00 € macht sie zu einer erschwinglichen Option für Singles oder Paare, die auf der Suche nach einer modernen...

Mehr anzeigen

Weitere Informationen

Stichworte
Carport vorhanden, Stellplatz vorhanden, Nord-Ost-Balkon/Terrasse, Anzahl der Badezimmer: 1, Anzahl der separaten WCs: 1, Anzahl Terrassen: 1, Balkon-Terrassen-Fläche: 11,64 m², Gartenfläche: 19,51 m², Bundesland: Salzburg, Wohnungsnr.: A05

Anbieter der Immobilie

Partner

Wohnzone Schlössl GmbH

Herzog Odilo-Straße 4, 5310 MONDSEE

user

Herr Johannes Gonska

Dein Ansprechpartner

Anbieter-Website Anbieter-Profil Anbieter-Impressum

Online-ID: 2lz865f

Referenznummer: OBGC20231117092044929e588d4ede7

Finde Angebote wie dieses

imageimageimage

Günstige Immobilienfinanzierung einfach online berechnen

Persönliches Angebot berechnen

Hier geht es zu unserem Impressum, den Allgemeinen Geschäftsbedingungen, den Hinweisen zum Datenschutz und nutzungsbasierter Online-Werbung.